Commercial Properties To Let in Auckley, Doncaster, South Yorkshire
Doncaster 420 is one of the largest industrial/logistics spec builds available in South Yorkshire, offering 418,276 sq ft in a single unit. The building is available for immediate occupation This is a grade A logistics facility in a prime South Yorkshire location. This is a Net Zero Carbon Deve...
Unit 2 Avion provides a modern, high specification industrial/warehouse unit which is immediately available to let. This newly constructed unit forms part of the established Aero Centre at DSA. The unit benefits from the following Grade A specification: * 12m clear internal warehouse height * L...
FOR SALE / TO LET - HIGH QUALITY WAREHOUSE / INDUSTRIAL UNIT PROPERTY SUMMARY Brand new, high quality industrial / warehouse facility with a good sized yard in an excellent location - Available For Sale or To Let - 2,767.49 Sq M (29,789 Sq Ft) - Minimum eaves height 8m - Concrete service...
The premises comprises a recently built detached steel portal framed industrial/warehouse unit close to DSA Airport. The unit provides a fully secured yard and car parking area. Access to the unit is via 2 x loading doors leading into the 7.5m eaves clear height space. Additional access leads i...
High Quality Industrial / Warehouse Unit with Good Links to the M18 Motorway at Junction 3 Per sq ft £8.75 per sq ft The available premises comprise a modern detached industrial / warehouse unit of steel portal frame construction, with full height steel cladding and partial glazi...
The property comprises a detached two storey modern office building of frame construction with brick elevations under a pitched roof with cladding coverage. Internally, the space provides an entrance lobby with stairs & landing leading to largely open plan office area on both floor levels. Offi...
TO LET - MODERN HIGH-QUALITY INDUSTRIAL/WAREHOUSE UNIT WITH OPEN PLAN WAREHOUSING SPACE IN A PRIME LOCATION NEXT TO DONCASTER SHEFFIELD AIRPORT SUMMARY - Industrial / Warehouse Unit - 4,000 Sq Ft - Quality Business Park Environment - Next to Doncaster Sheffield Airport - Excellent Road Links ...
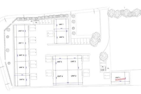
Three newly constructed business units, all located around a secure, shared yard/parking area. The units are constructed of steel portal frame with blockwork and profile clad elevations and single pitched roofs. Each bay provides shutter access leading from the parking area to the high bay wareho...
The property comprises a ground floor office suite within a semi-detached two storey modern office building which is of frame construction with brick elevations under a pitched roof with cladding coverage. Internally, the space is laid out to provide shared entrance lobby with WC facilities and ...
































