Commercial Properties To Let in Deeside
The property comprises a large semi-detached industrial/warehouse building constructed of concrete frame with brick/block elevations and plastic-coated steel clad beneath a pitched roof comprising similar materials incorporating natural light panels. To the front elevation is a two-storey office...
79 car spaces available to let adjacent to Wales and West Housing, Dt Davids Park, Ewloe. Close to A55 / A494 Ideal overflow car parking A new access to be created from Cefn Y Ddol. Available as a whole. Viewing from the public highway. Leasehold - On application
Gateway, Deeside is a mixed-use development site offering up to 1.125 million sq ft of industrial / distribution space. Gateway Deeside is a strategic development site located five miles from the M56 (J16) and only six miles north west of Chester City Centre. Bespoke units are available on a Bu...
The property comprises a purpose-built manufacturing facility, the construction of which is of steel frame. The property provides open plan high bay industrial accommodation together with single storey offices, kitchen/canteen and wc facilities. The property benefits from two access poi...
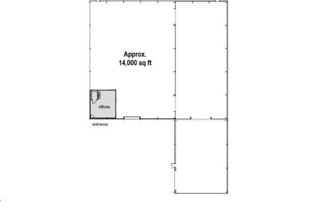
This high-quality, spacious 14,000 sq. ft. unit offers an exceptional opportunity for light industrial or commercial operations, featuring a large yard, superb access, a significant roller shutter, expansive warehouse space with high eaves, a reception area, three offices, and s...
Yard space from 150 sq m to 1,000 sq m in Sandycroft. The site is situated off Prince William Avenue, Sandycroft, in the heart of the main employment area. The site is close to Chester Road (B5129) and provides direct access to the A494 (to North Wales), the A55 via Hawarden is approximately mi...
High quality office building in a prominent location on St David's Park, close to A55 and A494. Opposite St David's Park Hotel. Air conditioned, excellent natural light, large open plan floor plates suitable for tenant fitout. Fast broadband available. High quality on site cafe Boardroom and ...
High quality office building in a prominent location on St David's Park, close to A55 and A494. Opposite St David's Park Hotel. Air conditioned, excellent natural light, large open plan floor plates suitable for tenant fitout. Fast broadband available. High quality on site cafe Boardroom and ...
Units 1 & 2 Parkway provide a combined 5,662 sq ft of adaptable industrial space, ideal for a range of uses including light manufacturing, storage, and distribution. The property features 3-phase power, WC facilities, generous car parking, dedicated office space, and efficient circulation areas ...
High quality office building in a prominent location on St David's Park, close to A55 and A494. Opposite St David's Park Hotel. Air conditioned, excellent natural light, large open plan floor plates suitable for tenant fitout. Fast broadband available. High quality on site cafe Boardroom and ...
High quality office building in a prominent location on St David's Park, close to A55 and A494. Opposite St David's Park Hotel. Air conditioned, excellent natural light, large open plan floor plates suitable for tenant fitout. Fast broadband available. High quality on site cafe Boardroom and ...
The property is a 2 storey office building, originally constructed as a Fire Station in the 1950's and having been altered and extended over the last 20 years to provide 2 floors of high quality office accommodation. The building provides a combination of open plan and private office space, tog...


