Commercial Properties To Let in Denmore, Aberdeen, Aberdeenshire
Paid partnerships can play a role in listing order
The Horizon Centre comprises a detached industrial unit with two storey offices to the front and secure yard facilities. The unit is of steel portal frame construction under a pitched roof finished with insulated profile metal clad sheeting above. Workshop The workshop building dates from 1990, ...
Range of flexible accommodation solutions which can be specifically tailored to meet individual organisations’ business needs. Range of flexible accommodation solutions which can be specifically tailored to meet individual organisations' business needs. The Aberdeen Energy Park situated in th...
The property comprises as single storey building of steel portal frame construction infilled with concrete block dado wall and clad above with flat panels. Generous car parking and loading / unloading facilities are provided adjacent to the unit.
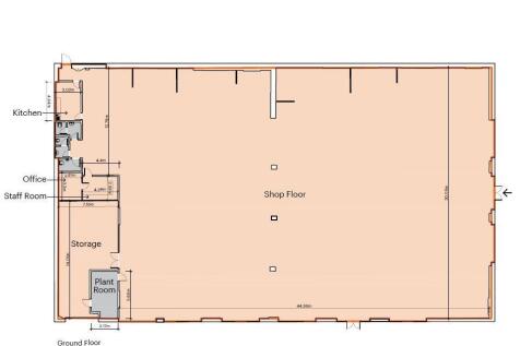
The property comprises two adjoining units within a trade counter and industrial estate with occupiers including Screwfix and Toolstation. The property is of steel portal frame construction with cavity concrete dado walls and insulated press steel cladding above. The pitch roof is clad with cemen...
The subjects comprise mid-terraced industrial unit of steel portal frame construction off a concrete floor under a pitched roof. The roof has recently been replaced across the entire terrace. The subjects benefit from an eaves height of approx. 5.5 metres and one large electric roller shutter do...
Flexible Office Suites with generous parking and amenities Aberdeen Innovation Park is home to start up companies through to global head quarters. All tenants benefit from the same dedicated, on-site management and are encouraged to contribute to the Parks' commercial and social community throug...
Terraced warehouses in whole or part, with cranes and laydown space Per sq ft £8.24 per sq ft The property is a terraced industrial facility, with the opportunity to split, featuring ancillary office accommodation and staff welfare. The property benefits from laydown space to th...
This modern detached warehouse benefits from an office provision along with a reasonable outdoor yard. Situated in a great location with convenient access to major transport routes, it caters to a variety of business needs. Dedicated parking is also available.
Detached warehouse with office accommodation and yard The recently refurbished property comprises a detached warehouse with impressive open plan office accommodation and yard to the rear. The warehouse is of steel portal frame construction with concrete blockwork externally harled and profile me...
The unit comprises a mid-terraced industrial unit within a mixed use development of 14 similar units. Internally, the subjects comprise of a workshop space together with ancillary office accommodation and staff facilities. The subjects benefit from the following specification: Vehicle access v...
Bridge of Don is an established commercial hub north of Aberdeen, offering immediate access onto the A90 (AWPR) dual carriageway providing direct routes south to Aberdeen City Centre (approx. 4 miles) and north to Peterhead (approx. 30 miles). Scotstown Road Industrial Estate occupies a central p...
This distinctive commercial property features custom-designed collaboration and presentation spaces, perfect for a team of 30. Located in a vibrant area, it promotes creativity and effective training, showcasing modern amenities and stylish aesthetics that enhance productivity and innovation.

