Commercial Properties To Let in Fold Head, Rochdale, Greater Manchester
Paid partnerships can play a role in listing order
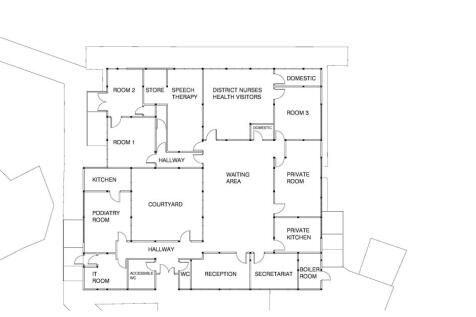
Former Health Centre, Brenbar Crescent, Whitworth, Rochdale, OL12 8BB Keystone are delighted to offer this exceptional and lease opportunity, ideally situated in the sought-after village of Whitworth, within the borough of Rochdale. This substantial prop
Former Health Centre, Brenbar Crescent, Whitworth, Rochdale, OL12 8BB Keystone are delighted to offer this exceptional and lease opportunity, ideally situated in the sought-after village of Whitworth, within the borough of Rochdale. This substantial prope
TO LET (MAY SELL) UNIT 2 VALE MILL, NORTH STREET, WHITWORTH. Single storey workshop with shared secure yard 4,581 ft² (425.6 m²) approx • Shared Secure Yard • Large Access Door • Good Eaves Height • New Lease Available