Commercial Properties To Let in Hadley Common, Barnet, Hertfordshire
Paid partnerships can play a role in listing order
New town centre mixed use development comprising 59 apartments and 8112 sq ft of commercial accommodation. The development is located off Barnet High Street (A1000) , opposite The Spires Shopping Centre and surrounded by many restaurants, and multiple retailers and commercial service companies.
New town centre mixed use development comprising 59 apartments and 8112 sq ft of commercial accommodation. The development is located off Barnet High Street (A1000) , opposite The Spires Shopping Centre and surrounded by many restaurants, and multiple retailers and commercial service companies.
New town centre mixed use development comprising 59 apartments and 8112 sq ft of commercial accommodation. The development is located off Barnet High Street (A1000) , opposite The Spires Shopping Centre and surrounded by many restaurants, and multiple retailers and commercial service companies.
Lytton Road is conveniently situated within quarter of a mile of New Barnet station and is approx. 1 mile from High Barnet underground station (Northern Line).There is a selection of local shops, coffee shops & eateries along Lytton Road, and the Sainsbury's supermarket is within a third of a mile.
Situated in Barnet High Street, a former barber shop, surrounded by a number of other independent shops, restaurants & coffee shops - as well as the more familiar Costa, McDonald's and Tesco Express - with High Barnet underground station (Northern Line) situated approx. a quarter of a mile away.
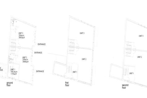
New town centre mixed use development comprising 59 apartments and 20,901 sq ft of commercial accommodation. The development is located off Barnet High Street (A1000) , opposite The Spires Shopping Centre and surrounded by many restaurants, and multiple retailers and commercial service companies....
New town centre mixed use development comprising 59 apartments and 8112 sq ft of commercial accommodation. The development is located off Barnet High Street (A1000) , opposite The Spires Shopping Centre and surrounded by many restaurants, and multiple retailers and commercial service companies. T...
New town centre mixed use development comprising 59 apartments and 8112 sq ft of commercial accommodation. The development is located off Barnet High Street (A1000) , opposite The Spires Shopping Centre and surrounded by many restaurants, and multiple retailers and commercial service companies. T...











