Commercial Properties To Let in M3
Paid partnerships can play a role in listing order
Boutique workspace located in Spinningfields in the heart of Manchester.This Is The Space is a workspace that allows businesses to collaborate and focus on growth. Each workspace is unique and individually designed with different flooring and lighting giving businesses their own true identity.
Located a 5 minutes walk from Deansgate and Spinningfields, Quebec provides first floor workspaces to rent at competitive prices on all inclusive rents.The first floor also provides a communal meeting room to use free of charge and a kitchenette for all occupiers use.
81-83 Chapel Street is a prominently located self-contained office across ground and lower ground floors.Residential accommodation is above and to the rear of the building. The building is an end terrace of brick construction with timber sash windows.
The property is situated in a highly prominent and sought after location fronting Deansgate, forming part of the well known historic shopping precinct of Barton Arcade. The location is popular with retailers and restaurants with some well known operators in the immediate vicinity including Livin...
Newly refurbished office space in the heart of Manchester that provides high-quality work space on flexible terms, for businesses of all types. The space is available unfurnished with the option to be fully fitted out.
Bridge Street Studios has 6 self contained serviced offices located in Manchester City Centre offering a variety of spaces all unique and individually designed ranging from 3 to 20 persons. A magnificent floral refurb" as reviewed by the Guardian newspaper of this boutique office accommodation i...
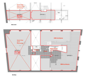
Occupying a prominent position on one of Manchester's most prestigious and historic streets, 22 St John Street represents a rare opportunity to lease Grade II listed office accommodation that seamlessly combines period grandeur with cutting-edge modern workspace design.


































