Commercial Properties To Let by Quintons, Newbury
93 results
The Kennet Centre - Newburys only covered Shopping Centre We are looking for independents or existing operators to occupy the vacant space. We can offer: A range of different sized units to suit your needs Guaranteed occupation until January 2026 Quick and easy decisions Pre-drafted lice...
PRICE REDUCED - TO LET/ FREEHOLD SALE CONSIDERED We are pleased to offer to the market this established nursery premises situated close to the sea, with good light levels and in an area well known for horticulture. The nursery benefits from a site of over 12 acres with circa 5 acres of growing...
We are pleased to offer this excellent horticultural distribution opportunity. The nursery site is located under 4 miles from Junction 13 of the M5 motorway, and extends to just over 9 acres in total, with a range of office, warehouse and glass structures, plus a yard with circa 30 available spa...
We are delighted to offer to the market this established nursery premises, situated in an area well known for horticulture. The nursery sits on a site of 7.68 acres and benefits from circa 5.5 acres of glass, with further ancillary building including a warehouse, workshop, staff room and mobile ...
The property comprises the former Maintenance Shed for the Gama Site. The property includes: * Fully Fenced site * 5 acres of surface around the property * Gated entrance * Communal site, other tenants insitu * Concrete floor * Substantially constructed of concrete with clad elevations. * Large...
The buildings comprise the former nuclear missile bunkers for the former Greenham Common Airbase. The bunkers are constructed of concrete with steel doors and are considered to be highly secure. They measure 40.9m long x 4.86m width x 3.92m height Ultra Secure Storage Up to 6 nuclear cruis...
Unit D1 & D2 is a self contained free standing warehouse incorporating ground and first floor offices. The property benefits from the following:- * 50 Parking spaces * LED lighting * 5m min eaves height * Property to be Fully refurbished * Ground & First Floor Office space * Fibre Connection *...
The Kennet Centre - Newburys only covered Shopping Centre We are looking for independents or existing operators to occupy the vacant space. We can offer: A range of different sized units to suit your needs Guaranteed occupation until January 2026 Quick and easy decisions Pre-drafted lice...
The property comprises the former Maintenance Shed for the Gama Site. The property includes: * Fully Fenced site * 5 acres of surface around the property * Gated entrance * Communal site, other tenants insitu * Concrete floor * Substantially constructed of concrete with clad elevations. * Large...
A substantial detached building arranged over ground, first and second floors due to the sloping nature of the site. The total site area is approx 0.80 acres. The site is securely fenced and gated. The building is constructed of brick around a steel frame. In the main the building includes 3 p...
Virtual tour available at: The property was constructed in 2002 and built to an extremely high standard with feature brickwork and full height glazing to the upper floors. The self-contained buildings comprise three floors of high quality open plan office accommodatio...
Unit 6 is a mid of terrace property constructed around a steel portal frame with brick and clad elevations under a fully insulated pitched roof. It has recently been comprehensively refurbished and is ready for immediate occupation. To the front of the units are ground and first floor offices w...
The property comprises a self contained building originally built as offices but could be used for a number of alternative uses. The property is arranged over ground and first floors. The ground floor comprises entrance lobby leading to stairs, lift and male and female WC's. The offices are des...
Sovereign House is a purpose built Grade A office building prominently situated on one of the main roads of Greenham Business Park, and close to the park entrance. It is accessed through a full height entrance hall, with a main reception desk and controlled barriers. There are high quality to...
The property comprises a town centre restaurant and bar with residential accomodation. The property is arranged over ground floor (bar & restaurant), first floor (private function area), residential accomodation and second floor apartment. Alternative uses for the property could include residenti...
A large retail unit set within the prime area of Northbrook Street, Newbury. The property is arranged over ground, first and second floors. Internally, the ground floor space has a vinyl floor, LED lights, air conditioning, suspended ceilings and large display frontage. The upper floors are used ...
Unit D1 & D2 is a self contained free standing warehouse incorporating ground and first floor offices. The property benefits from the following:- * 12 Parking spaces * LED lighting * 5m min eaves height * Property to be Fully refurbished * Ground & First Floor Office space * Fibre Connection *...
Elizabeth House offers modern open plan space on four floors. There are 21 car spaces to the rear, accessed via Park Street. The space was extensively refurbished 5 years ago and has the following features; Air-conditioning throughout LED lighting High quality WCs and wash basins Carpeted o...
The buildings comprise the former nuclear missile bunkers for the former Greenham Common Airbase. The bunkers are constructed of concrete with steel doors and are considered to be highly secure. They measure 40.9m long x 4.86m width x 3.92m height Ultra Secure Storage Up to 6 nuclear cruis...
To be Refurbished - This is a stand alone property which provides ground floor storage, first floor offices, with workshop/warehouse to the side. The ground floor includes entrance lobby, two WC's, kitchen and storage area under the first floor offices. The workshop / warehouse includes concre...
The property comprises a 4 storey Grade 11 office building with self contained car parking at the rear for 25 cars. The offices benefit in the main with Gas central heating, air cooling to parts, data cabling, LED lights, kitchen, WC's and ample parking.
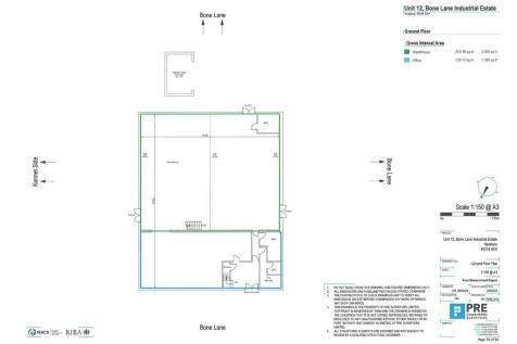
The property comprises a modern steel portal frame warehouse building which comprises ground floor entrance lobby with offices either side, kitchen, WC and large office to the rear. Surrounding the office area is warehouse space which includes works WC and office. There is a first floor mezzani...
Virtual tour available at: The property was constructed in 2002 and built to an extremely high standard with feature brickwork and full height glazing to the upper floors. The self-contained buildings comprise three floors of high quality open plan office accommodatio...
Virtual tour available at: The property was constructed in 2002 and built to an extremely high standard with feature brickwork and full height glazing to the upper floors. The self-contained buildings comprise three floors of high quality open plan office accommodatio...























