The Wheatsheaf, 26 Carlisle Street, Felling, Gateshead, NE10 0HQ
Size
Ask agent
Tenure
Freehold
EPC
Parking
Ask agent
- Primary use
- Pub
Key features
- Wet-led Community Pub
- Approx.50 seated covers + standing (c.100)
- 1 bedroom owner's accommodation
- Around 0.5 miles from Central Gateshead
- Turnover YE24: c.£179,000
- EPC Rating D
- Christie & Co Ref: 6450555
Description
The Wheatsheaf is a traditional pub in immaculate condition, having been well invested in over the years.
This approximately 50 seated cover bar (plus standing room for vertical drinking for at least the same number again) features a classic design with period features throughout. The interior includes elements such as dark wooden furnishings and decorative touches that contribute to its traditional pub feel.
This well-established venue is ideal for those looking to open their first pub or expand their existing portfolio.
The Wheatsheaf is perfectly positioned at 26 Carlisle Street, Felling, Gateshead, offering excellent accessibility just a short walk from the Felling Metro Station. Major roads such as the A184 and A167 are nearby, ensuring easy access by car.
Situated approximately two miles from Gateshead town centre and about three miles from Newcastle upon Tyne. Gateshead is a vibrant town known for its cultural attractions and its close proximity to Newcastle.
The property is surrounded by a variety of complementary businesses including bars, restaurants, and retail shops.
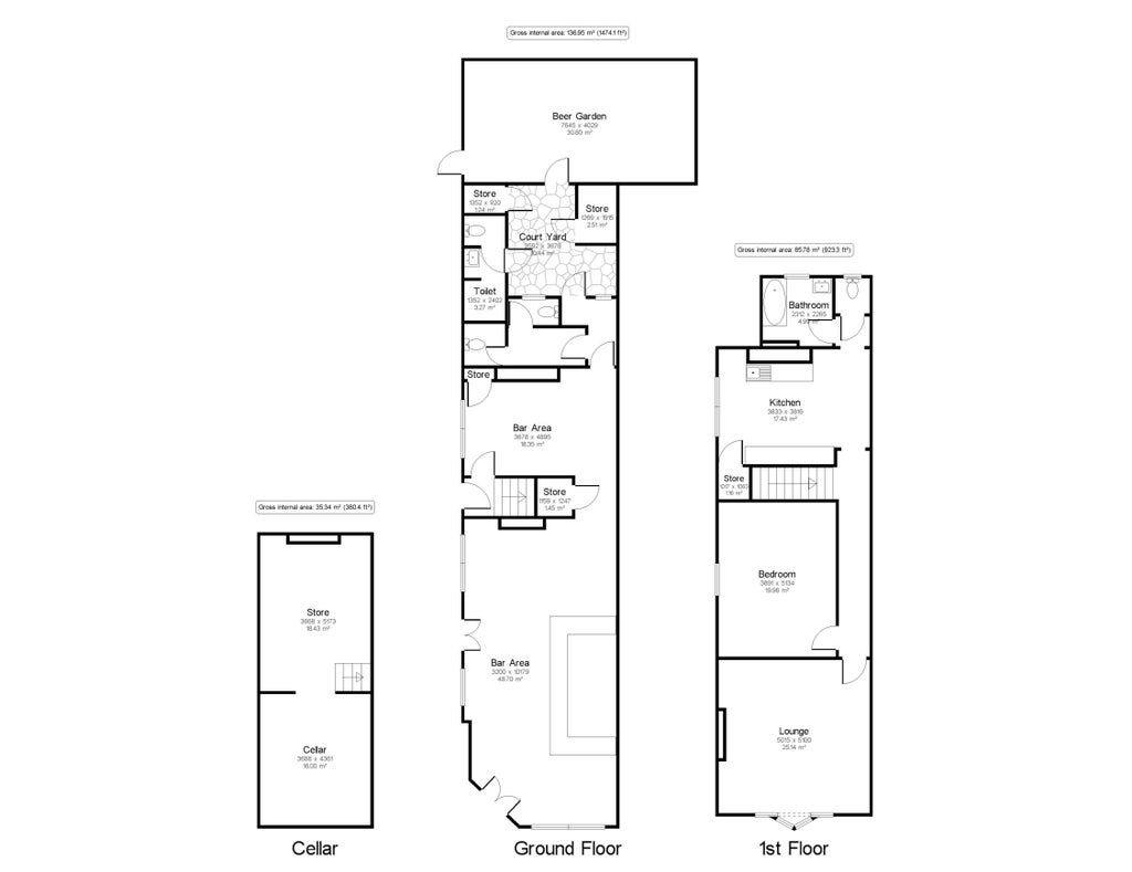
Internally, the Wheatsheaf features a well organised layout across three levels. The basement cellar includes a spacious store and cellar area for beverages and supplies.
The ground floor comprises a main bar area, leading through to a snug store room, WC, an office.
We are advised that all fixtures and fittings are free from hire purchase or lease agreements and are included in the sale, with the exception of items that are personal to our clients.
Owner's AccommodationFirst floor offers living accommodation with private access, meaning it could be leased out separate from the pub. Comprised of a very well maintained and immaculately presented flat, one bedroom, lounge, fully equipped kitchen and bathroom.
The OpportunityThis wet-led community pub in Felling, Gateshead offering a solid business opportunity. Located in a residential area, the pub benefits from a steady flow of local patrons.
Its central position makes it a convenient spot for social gatherings and local events. This pub has the potential to become a key part of the neighbourhood, catering to the needs of the surrounding community.
Turnover YE March 24: c.£179,000
100% Wet Sales
Adjusted Net Profit: c.£53,000
Monday to Thursday
5.00pm - 11:30pm
Friday & Saturday
12.00pm - 12.00am
Sunday
12.00pm - 11.00pm
The Rateable Value as of 1 April 2023 is £2,000
Confirmation of actual rates payable can be obtained from
the local Authority.
- Service charge
- Ask agent
- Business rates
- Ask agent
- Use class
- Ask agent
- Listed building
- No
- Business for sale
- Yes
An Energy Performance certificate helps you understand the current energy efficiency of a property.
Read more about EPC requirementsAsk agent
- BREEAM rating
- Ask agent
- Environmental description
- Ask agent
The Wheatsheaf, 26 Carlisle Street, Felling, Gateshead, NE10 0HQ
We’re the leading specialist advisor for buying and selling businesses in our sectors - hotels, pubs, restaurants, childcare, healthcare, convenience retail, leisure and medical.
If you’re looking to buy or sell a business in our specialist sectors – from a pharmacy in Sussex to a hotel in Austria – our expert advice and collaborative support will help you achieve your goals. You may be an independent first-time buyer or a multinational adding to your portfolio; either way, you’ll discover that our personalised service is focused on helping you achieve your ambitions.
Clients have access to our carefully managed network of potential buyers. This unique database of contacts has been continually developed by our advanced IT capabilities and benefits from both our years of experience developing our network and our wide geographical coverage.
Where we work
We employ the largest team of sector specialists in the UK and the largest group of hotel specialists in Europe, providing professional brokerage and advisory services from offices in major cities across Britain and Europe. And because we’ve been doing this for over 80 years, we know our sectors and local markets inside out. We work closely with our clients to guide and conclude transactions of any size, covering hotels, restaurants and pubs, leisure, forecourts and convenience retail businesses, social care and elderly care, childcare & education facilities, dental practices and pharmacies.
Our professional services
We offer unrivalled insight, experience and expertise across your choice of services, including brokerage, consultancy, finance, development, investment, surveying, rent reviews, dispute resolution, corporate valuation, and turnaround & recovery. These services are all underpinned by our in-depth market intelligence and leading-edge technology. And we’re accredited by the Royal Institution of Chartered Surveyors (RICS), so you can trust in our professionalism.
What makes us tick
Businesses are about people, so relationships matter to us. We bring an integrity and transparency to business which can be all too rare – and that’s why people trust us. Our clients will attest to our genuine desire to help achieve their objectives, our attention to detail, and our tireless hard work on their behalf. We understand that buying a business can bring its own pressures and strains; needs can change, plans may need to be adjusted, and opportunities can come and go. But we’re always here, a constant, flexible and reliable force you can count on.
Our opening hours for all offices:
Mon – Fri, 9am – 5.30pm
Your search history
You have no recent searches
Disclaimer - Property reference 6450555-fh. The information displayed about this property comprises a property advertisement. Rightmove.co.uk makes no warranty as to the accuracy or completeness of the advertisement or any linked or associated information, and Rightmove has no control over the content. This property advertisement does not constitute property particulars. The information is provided and maintained by Christie & Co, Pubs & Restaurants. Please contact the selling agent or developer directly to obtain any information which may be available under the terms of The Energy Performance of Buildings (Certificates and Inspections) (England and Wales) Regulations 2007 or the Home Report if in relation to a residential property in Scotland.















