
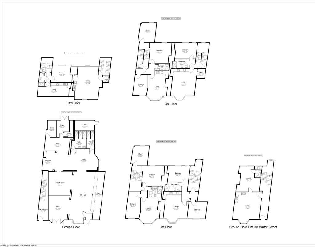
Fairways Wine Bar, 39 Water Street, Rhyl, LL18 1SR
Offers in region of ÂŁ795,000
15 of 15Property media 15 of 15

Copyright © 2000-2025 Rightmove Group Limited. All rights reserved. Rightmove prohibits the scraping of its content. You can find further details here.