Barratt Homes, Orchards View @ Wichelstowe
Scott Way, South Leaze, Swindon, Wiltshire, SN1 7NT

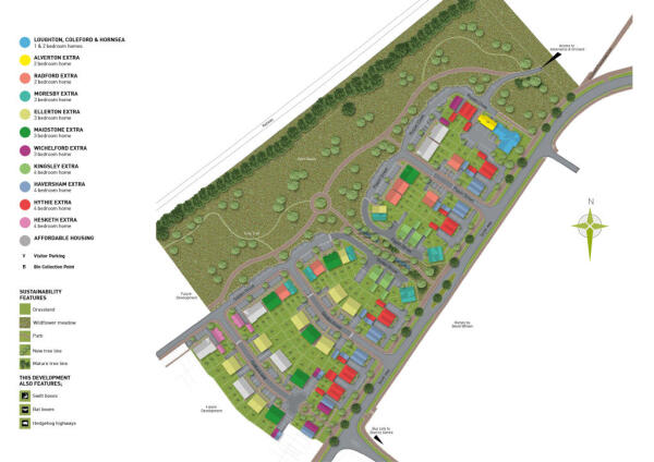
Set in 200 acres of open space, Orchards View is a development of 1 & 2 bedroom apartments and 2, 3 & 4 bedroom homes. Here, you will find brand new play areas, sports pitches and allotments. There is also a Waitrose, primary & secondary school and the Hall & Woodhouse pub.
Swindon train station is just 2 miles away, connecting you to central London within 57 minutes on the fast electric railway.
Properties on the Barratt Homes development
Development location
Scott Way, South Leaze, Swindon, Wiltshire, SN1 7NT
Disclaimer: The information displayed about this development and property within it comprises a property advertisement. Rightmove.co.uk makes no warranty as to the accuracy or completeness of the advertisement or any linked or associated information, and Rightmove has no control over the content. This property advertisement does not constitute property particulars. The information is provided and maintained by Barratt Homes. Please contact the selling agent or developer directly to obtain any information which may be available under the terms of The Energy Performance of Buildings (Certificates and Inspections) (England and Wales) Regulations 2007 or the Home Report if in relation to a residential property in Scotland.










