New Homes and Developments For Sale in Chunal, Glossop, Derbyshire
The Culcheth (A) combines modern style with practical living. Featuring a bay-fronted lounge, open-plan kitchen/diner with bi-fold doors, and three bedrooms including a master with en suite, it's perfect for families or professionals seeking comfort and space.
Windgather House - The Last Remaining Detached Home by Mellor Homes Windgather House represents a rare opportunity to secure the final detached home at this sought-after development by renowned local builders, Mellor Homes. With 50% of the site already under offer, inte...
The Marsden is a standout four-bedroom home with an extended kitchen, dining & family space, skylights, and bi-fold doors to the garden. With a bay-fronted lounge, utility, snug, and three bathrooms including two en suites, it blends style, space & practicality beautifully.
Welcome to The Peaks. A stunning development of 8 properties from Mellor Homes. Anyone who took the opportunity to visit The Rivers development (all sold) this last twelve months will know what a high specification of build to expect. These aren't just your average new build homes, with no ex...
The Tatton is a stylish four-bedroom home designed for modern family life. Featuring a bright open-plan kitchen/family space with skylights and bi-fold doors, a spacious lounge, and a master suite with en suite and wardrobe, it offers comfort, space, and practicality throughout.
Welcome to The Peaks. A stunning development of just 8 bespoke properties from Mellor Homes. Just four plots remain and occupancy for this property can be available in approx. 6 to 8 weeks. These aren't just your average new build homes, with no expense spared and exceptional attention to det...
The Culcheth (B) combines modern style with practical living. Featuring a bay-fronted lounge, open-plan kitchen/diner with bi-fold doors, and three bedrooms including a master with en suite, it's perfect for families or professionals seeking comfort and space.
STUNNING NEW HOMES! This large 1,321 sq ft three-storey, four-bedroom linked semi detached home perfectly blends, space, style and functionality for your busy lifestyle. An abundance of stunning accommodation includes a generous family or entertaining space with an additional separate, spacio...
The Culcheth (A) combines modern style with practical living. Featuring a bay-fronted lounge, open-plan kitchen/diner with bi-fold doors, and three bedrooms including a master with en suite, it's perfect for families or professionals seeking comfort and space.
The Culcheth (A) combines modern style with practical living. Featuring a bay-fronted lounge, open-plan kitchen/diner with bi-fold doors, and three bedrooms including a master with en suite, it's perfect for families or professionals seeking comfort and space.
The Adlington offers stylish, low-maintenance living with a bright open-plan kitchen, dining & lounge area, bi-fold doors to the garden, and a separate sitting room. Upstairs, three bedrooms include a master with en suite, making it ideal for modern family life or first-time buyers.
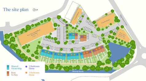
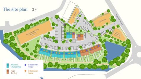
Thoughtfully designed, affordable homes in the heart of Glossop. The Development Weirbrook is a beautiful new development of 25 2-and-3-bedroom homes in one of Derbyshire?s most characterful locations. Nestled beside a gently flowing brook and and surrounded by natur...
Thoughtfully designed, affordable homes in the heart of Glossop. The Development Weirbrook is a beautiful new development of 25 2-and-3-bedroom homes in one of Derbyshire?s most characterful locations. Nestled beside a gently flowing brook and and surrounded by natur...
Thoughtfully designed, affordable homes in the heart of Glossop. The Development Weirbrook is a beautiful new development of 25 2-and-3-bedroom homes in one of Derbyshire?s most characterful locations. Nestled beside a gently flowing brook and and surrounded by natur...
Thoughtfully designed, affordable homes in the heart of Glossop. The Development Weirbrook is a beautiful new development of 25 2-and-3-bedroom homes in one of Derbyshire?s most characterful locations. Nestled beside a gently flowing brook and and surrounded by natur...











































