Skip to content
Get brand editions for Ashwood Homes
NEW HOME

Hall Gate, PE12 7RW

PROPERTY TYPE

Semi-Detached

BEDROOMS

3

SIZE

902 sq ft

84 sq m

TENURE
Describes how you own a property. There are different types of tenure - freehold, leasehold, and commonhold.Read more about tenure in our glossary page.

Freehold

Key features

  • Integrated Appliances as standard
  • 10 Year NHBC Warranty
  • Good sized lounge
  • Good commuting distance to local towns and cities
  • Integrated appliances as standard
  • Patio doors leading to the rear garden
  • Off road parking
  • Solar Panels and EV charger
  • Choice of Kitchen, flooring and bathroom finishes

Description

The Aire is a stunning 3 bedroom property perfect for families and first time buyers.

Spacious modern kitchen / dining room perfect for entertaining with the French doors looking out onto the rear garden. Upstairs combines en-suite to master bedroom with a further double bedroom and one single bedroom, joined by a large family bathroom.
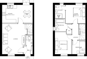
Ground Floor:

Lounge: 5.07m x 3.77m (16' 8" x 12' 42")

Kitchen: 2.02m x 3.00 (16' 6" x 9' 10")

W/C: 1.65m x 1.13m (5' 5" x 3' 8")

First Floor:

Master Bedroom: 3.11m x 3.08m (10' 3" x 10' 1")

En-suite: 2.26m x 1.83m (7' 5" x 6' 0")

Bedroom 2: 3.71m x 2.74m (12' 2" x 9' 0")

Bedroom 3: 2.28m x 2.20m (4' 6" x 7' 3")

Bathroom: 2.10m x 1.83m (6' 11" x 6' 0")



*** All images used are for illustrative purposes. These and the dimensions given are illustrative for this house type and individual properties may differ ***

A Management Company at 'Holbeach Meadows' has been set up to oversee the day to day upkeep and maintenance of the Estate landscaping including any open spaces. The charge for the year commencing April 2025 to be £208.27 and will be reviewed on an annual basis. Please ask the sales negotiator for more information
COUNCIL TAXA payment made to your local authority in order to pay for local services like schools, libraries, and refuse collection. The amount you pay depends on the value of the property.Read more about council Tax in our glossary page.
Ask developer
PARKINGDetails of how and where vehicles can be parked, and any associated costs.Read more about parking in our glossary page.
Driveway
GARDENA property has access to an outdoor space, which could be private or shared.
Yes
ACCESSIBILITYHow a property has been adapted to meet the needs of vulnerable or disabled individuals.Read more about accessibility in our glossary page.
Ask developer

Energy performance certificate - ask developer

Ashwood HomesHolbeach Meadows
About this community:
  1. heart of the Lincolnshire
  2. 2-5 bedroom homes
  3. Surrounded by countryside
  4. semi-rural community

Hall Gate, PE12 7RW

Approximate location

Add an important place to see how long it'd take to get there from our property listings.

__mins driving to your place

Check how much you can borrow

Get an instant, personalised result:

  • Show sellers you’re serious
  • Secure viewings faster with agents
  • No impact on your credit score
Recently sold & under offer
See similar nearby properties
Get brand editions for Ashwood Homes

About the development

Holbeach Meadows

Hall Gate, PE12 7RW

agent logo

About Ashwood Homes

With over 25 years’ in the residential property market, Ashwood Homes Developments based in the heart of Lincolnshire, has built up an enviable reputation.

We’re proud to say that over the years we have provided employment for many local developments and with the ambitious plans we have for the future, there will continue to be a whole range of job opportunities to be had.

We build a range of properties from two bed properties right through to five bed properties with budgets to suit every pocket.

Each development is carefully designed to provide a sense of space to suit the family, retired and singletons alike.

Ashwood Homes Developments offer a “one stop shop” in respect of the purchase of your new home from the time you reserve your new home right through to legal completion.

Your mortgage

Per year
Lenders usually expect a 10% deposit
%
Choose between 2 and 40 years
Years
Current average is 4.5%
%
Monthly repayments
£1,040
We think you can borrow up to
Add your household income above
Powered bynationwideThe Nationwide Logo represents a symbol of financial strength and community, empowering members to achieve their goals
These results are estimates and are only intended as a guide. Make sure you obtain accurate figures from your lender before committing to any mortgage. Your home may be repossessed if you do not keep up repayments on a mortgage.

Notes

These notes are private, only you can see them.

Staying secure when looking for property

Ensure you're up to date with our latest advice on how to avoid fraud or scams when looking for property online.

Visit our security centre to find out more

Disclaimer - Property reference aire2ps. The information displayed about this property comprises a property advertisement. Rightmove.co.uk makes no warranty as to the accuracy or completeness of the advertisement or any linked or associated information, and Rightmove has no control over the content. This property advertisement does not constitute property particulars. The information is provided and maintained by Ashwood Homes. Please contact the selling agent or developer directly to obtain any information which may be available under the terms of The Energy Performance of Buildings (Certificates and Inspections) (England and Wales) Regulations 2007 or the Home Report if in relation to a residential property in Scotland.

*This is the average speed from the provider with the fastest broadband package available at this postcode. The average speed displayed is based on the download speeds of at least 50% of customers at peak time (8pm to 10pm). Fibre/cable services at the postcode are subject to availability and may differ between properties within a postcode. Speeds can be affected by a range of technical and environmental factors. The speed at the property may be lower than that listed above. You can check the estimated speed and confirm availability to a property prior to purchasing on the broadband provider's website. Providers may increase charges. The information is provided and maintained by Decision Technologies Limited.
**This is indicative only and based on a 2-person household with multiple devices and simultaneous usage. Broadband performance is affected by multiple factors including number of occupants and devices, simultaneous usage, router range etc. For more information speak to your broadband provider.

Map data ©OpenStreetMap contributors.