
Barton Way, Dartmouth, TQ6 0GN

- PROPERTY TYPE
Retirement Property
- BEDROOMS
2
- SIZE
Ask developer
Key features
- Lovely, low maintenance retirement apartments, each with a balcony or patio
- Great location in this popular and pretty coastal town just two miles from Dartmouth Harbour with excellent transport links
- Stylish landscaped gardens for evening cocktails and lazy afternoons with friends
- Elegant communal lounge for parties, events and everyday socialising with friends and new neighbours
- Subsidised and sociable chef-run bistro with ever changing seasonal menus
- Manager onsite 24/7 for your peace of mind, plus the option of tailored domestic support and personal care should you need it
- North facing
- 24 hour staffing
- Bistro
- Communal lounge
Description
This spectacular 2 bedroom apartment in Dartmouth, Devon is part of the Mewstone Place development from the award-winning McCarthy Stone. A private retirement apartment, Apartment 25 is located on the first floor, is low-maintenance and contains extra safety features. See the exclusive benefits and highlights this property has to offer in the development information.
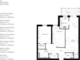
Room Dimensions
- Living Room - 25.14 SQM
- Kitchen - 5.67 SQM
- Bedroom One - 12.19 SQM
- Bedroom Two - 14.56 SQM
- Shower Room - 4.34 SQM
- Balcony - 6.88 SQM
- WC - 2.2 SQM
- COUNCIL TAXA payment made to your local authority in order to pay for local services like schools, libraries, and refuse collection. The amount you pay depends on the value of the property.Read more about council Tax in our glossary page.
- Band: TBC
- PARKINGDetails of how and where vehicles can be parked, and any associated costs.Read more about parking in our glossary page.
- Ask developer
- GARDENA property has access to an outdoor space, which could be private or shared.
- Yes
- ACCESSIBILITYHow a property has been adapted to meet the needs of vulnerable or disabled individuals.Read more about accessibility in our glossary page.
- Ask developer
Energy performance certificate - ask developer
Barton Way, Dartmouth, TQ6 0GN
Add an important place to see how long it'd take to get there from our property listings.
__mins driving to your place
About McCarthy Stone
McCarthy Stone is the market leader in building and managing award-winning retirement living properties and communities in prime locations across the UK.
While all McCarthy Stone properties are cleverly designed to make life easier—with helpful on-site staff and thoughtful features to support you as you age, we offer a choice of independent living communities—Retirement Living (exclusively for over 60s) and Retirement Living PLUS (for over 70s)—with differing levels of services and assisted living facilities to support you now and in the future.
Notes
Staying secure when looking for property
Ensure you're up to date with our latest advice on how to avoid fraud or scams when looking for property online.
Visit our security centre to find out moreDisclaimer - Property reference 2_Apartment 25. The information displayed about this property comprises a property advertisement. Rightmove.co.uk makes no warranty as to the accuracy or completeness of the advertisement or any linked or associated information, and Rightmove has no control over the content. This property advertisement does not constitute property particulars. The information is provided and maintained by McCarthy Stone. Please contact the selling agent or developer directly to obtain any information which may be available under the terms of The Energy Performance of Buildings (Certificates and Inspections) (England and Wales) Regulations 2007 or the Home Report if in relation to a residential property in Scotland.
*This is the average speed from the provider with the fastest broadband package available at this postcode. The average speed displayed is based on the download speeds of at least 50% of customers at peak time (8pm to 10pm). Fibre/cable services at the postcode are subject to availability and may differ between properties within a postcode. Speeds can be affected by a range of technical and environmental factors. The speed at the property may be lower than that listed above. You can check the estimated speed and confirm availability to a property prior to purchasing on the broadband provider's website. Providers may increase charges. The information is provided and maintained by Decision Technologies Limited. **This is indicative only and based on a 2-person household with multiple devices and simultaneous usage. Broadband performance is affected by multiple factors including number of occupants and devices, simultaneous usage, router range etc. For more information speak to your broadband provider.
Map data ©OpenStreetMap contributors.





