Skip to content
Get brand editions for McCarthy Stone
NEW HOME

Fosseway, Stow On The Wold, GL54 1FF

PROPERTY TYPE

Retirement Property

BEDROOMS

1

SIZE

Ask developer

Describes how you own a property. There are different types of tenure - freehold, leasehold, and commonhold.Read more about tenure in our glossary page.

Key features

  • Ideally located in the beautiful market town of Stow-on-the-Wold
  • A range of amenities close by including cafes, restaurants and shops
  • Elegant communal lounge to socialise in with friends and neighbours
  • On-site restaurant serving daily, freshly prepared meals.
  • Flexible care packages tailored to your needs and preferences
  • Excellent transport links with easy access to surrounding towns and villages
  • South West facing
  • Pets allowed
  • Communal lounge
  • Restaurant

Description


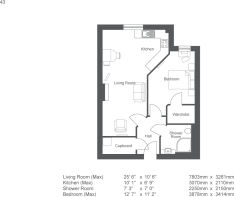
Property 43 is a beautiful one-bedroom, south west facing apartment measuring 59 square metres, located on the first floor.



The spacious living room is decorated in a natural colour which gives a bright and airy feel, while the fitted kitchen comes complete with integrated appliances.



The master bedroom benefits from a walk in wardrobe fitted with hanging space and shelving units. Finally, the shower room is complete with slip resistant flooring and a level access shower, a chrome towel radiator and a fitted mirror.



This fantastic apartment comes complete with fitted flooring throughout.


Don’t miss out, call to find out more today.


  • £92,500/£212 pcm (50% example share/50% rent)
  • £138,750 (75% example share/no rent)
  • Other shares available


SAP Rating - up to 83
COUNCIL TAXA payment made to your local authority in order to pay for local services like schools, libraries, and refuse collection. The amount you pay depends on the value of the property.Read more about council Tax in our glossary page.
Band: D
PARKINGDetails of how and where vehicles can be parked, and any associated costs.Read more about parking in our glossary page.
Ask developer
GARDENA property has access to an outdoor space, which could be private or shared.
Yes
ACCESSIBILITYHow a property has been adapted to meet the needs of vulnerable or disabled individuals.Read more about accessibility in our glossary page.
Ask developer
McCarthy StoneHawkesbury Place

Fosseway, Stow On The Wold, GL54 1FF

Approximate location

Add an important place to see how long it'd take to get there from our property listings.

__mins driving to your place

Recently sold & under offer
See similar nearby properties
Get brand editions for McCarthy Stone

About the development

Hawkesbury Place

Fosseway, Stow On The Wold, GL54 1FF

agent logo

About McCarthy Stone

McCarthy Stone is the market leader in building and managing award-winning retirement living properties and communities in prime locations across the UK.

While all McCarthy Stone properties are cleverly designed to make life easier—with helpful on-site staff and thoughtful features to support you as you age, we offer a choice of independent living communities—Retirement Living (exclusively for over 60s) and Retirement Living PLUS (for over 70s)—with differing levels of services and assisted living facilities to support you now and in the future.

Notes

These notes are private, only you can see them.

Staying secure when looking for property

Ensure you're up to date with our latest advice on how to avoid fraud or scams when looking for property online.

Visit our security centre to find out more

Disclaimer - Property reference 1_Apartment 43. The information displayed about this property comprises a property advertisement. Rightmove.co.uk makes no warranty as to the accuracy or completeness of the advertisement or any linked or associated information, and Rightmove has no control over the content. This property advertisement does not constitute property particulars. The information is provided and maintained by McCarthy Stone. Please contact the selling agent or developer directly to obtain any information which may be available under the terms of The Energy Performance of Buildings (Certificates and Inspections) (England and Wales) Regulations 2007 or the Home Report if in relation to a residential property in Scotland.

*This is the average speed from the provider with the fastest broadband package available at this postcode. The average speed displayed is based on the download speeds of at least 50% of customers at peak time (8pm to 10pm). Fibre/cable services at the postcode are subject to availability and may differ between properties within a postcode. Speeds can be affected by a range of technical and environmental factors. The speed at the property may be lower than that listed above. You can check the estimated speed and confirm availability to a property prior to purchasing on the broadband provider's website. Providers may increase charges. The information is provided and maintained by Decision Technologies Limited.
**This is indicative only and based on a 2-person household with multiple devices and simultaneous usage. Broadband performance is affected by multiple factors including number of occupants and devices, simultaneous usage, router range etc. For more information speak to your broadband provider.

Map data ©OpenStreetMap contributors.