Properties For Sale in Beausoleil
84 results
Located at the entrance to Monaco, in the heart of the residential Moneghetti district of Beausoleil, this property complex presents a rare opportunity for long-term asset enhancement. All prerequisites for starting the renovation work have already been approved. — Project details:...
At the gates of MONACO, in the famous LE CARNIER district of BEAUSOLEIL, in the middle of its stairs and narrow streets, you will arrive in this magnificent accommodation located just 4 minutes walk from Monaco St Charles. Atypical and spacious accommodation with a total surface ar...
180 meters to Monaco. A rare opportunity to acquire a pied-a-terre and rental investment in the centre of Beausoleil just a couple of streets to Monaco in one of the most sought after areas, in elegant new development. This off-plan 2 bedroom 1 bathroom apartment enjoys lovely views over the Med ...
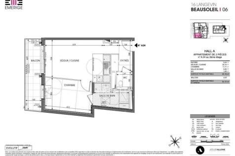
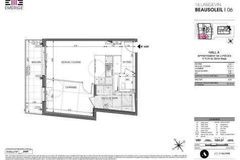
16 Rue Langevin is a superbly located residence in Beausoleil, just 180m from the Monaco border and very close to shops, bars, restaurants, transport and the beach. There are just 18 new apartments for sale from studios to four bedroom penthouse apartments.
500m to the border with Monaco, its train station, a new luxury residential development nestled in a wooded setting and facing the Principality, its Palace and the sea and offering high specifications including spa, hammam, sauna, parking, air-conditioning, storage room, parquet flooring... Vast ...
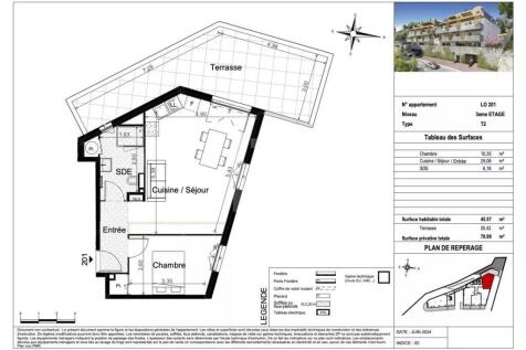
Ref. - Discover a superb 2-room apartment just 1 kilometer from the center of the Principality of Monaco, nestled in a contemporary residence. This bright apartment opens onto a southeast-facing terrace. You will be welcomed by an elegant entrance hall leading to a spacious living room of alm...
20 mins to Monaco on foot. Amenities on foot. Exceptional location for this new elegant development above Monaco and Fontvieille with 1, 2 and 3 bedroom and penthouses available. This off plan 1 bedroom 1 bathroom apartment is located on the 4th floor with a deep 25m2 terrace. Parking included. 3...
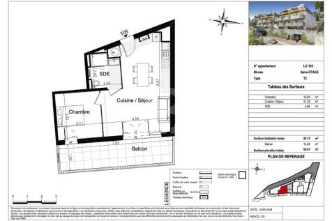
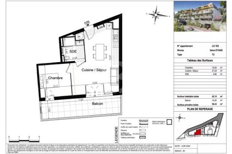
Ref. - Located 1 kilometer from the center of the Principality of Monaco, in this small contemporary residence, superb 2-room apartment on the second-to-last floor opening onto its spacious terrace. This apartment comprises an entrance hall leading to a beautiful corner living room with an ope...
Perched high above the magnificent Bay of Monaco, Beausoleil embodies the timeless elegance of the Côte d'Azur. Its winding streets, verdant gardens and breathtaking views over the Mediterranean make this sunny town a haven of peace with incomparable charm. Ideally located on the border between Fran
Discover the perfect pied-à-terre or investment opportunity in the heart of Beausoleil, France. This beautifully renovated 1 bedroom apartment, measuring approximately 27 sq.m, offers a prime location just a short walk from the glamour and excitement of Monaco.
Rates updated every 24hrs and provided by Lumon
Visit our currency page






