Properties For Sale in Chester
3 results
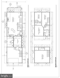
Start the New Year as a resident of Gibson's Grant!"Discover over 4,100 sq. ft. of high-end, custom elegance in this exceptional Eastern Shore home-perfectly located in one of Chester's most sought-after waterfront communities. With 6 bedrooms, 4.5 baths, and designer touches at every turn, this ...
Beautiful Home in Gibson's Grant with Elevator, Open Floor Plan & Two-Car Garage Welcome to this beautifully appointed home in the sought-after waterfront community of Gibson's Grant on Kent Island. This residence offers a perfect blend of comfort, style, and convenience - featuring a spacious op...
This brand new, custom-built home offers 2791 square feet of luxurious living space, with premium upgrades throughout. Situated in a prime location with serene open views, this home provides both privacy and a connection to open space. The home features high-end finishes, including luxury vinyl f...
Rates updated every 24hrs and provided by Lumon
Visit our currency page