Properties For Sale in Christ Church
181 results
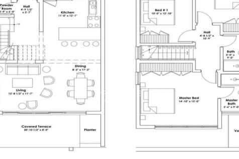
SPACIOUS 4 bed, 3 bath house situated in a QUIET and sought after neighbourhood NEAR to many amenities, including LONG BEACH, airport, Oistins and The Villages at Coverley to name a few. From entry, enjoy the open plan living/dining area off the kitchen and bonus room.
7 Seawinds – Prime Barbados Property for Sale Near OistinsDiscover 7 Seawinds, a versatile property offering both Barbados real estate investment potential and an idyllic island lifestyle. Perfectly positioned near the vibrant south coast, this home combines privacy, charm, and easy access to bea...
Discover 11,543 sq. ft. of flat land just steps from Surfers Point, a heavenly coastal haven where waves meet endless skies. With approved plans for 6 apartments, parking & pool, this rare gem offers the chance to create income-generating units or your dream retreat.
Rates updated every 24hrs and provided by Lumon
Visit our currency page
























