Properties For Sale in Oistins
24 results
Hythe Gardens 12 – Tropical Townhouse for Sale in Maxwell, Christ Church, BarbadosHythe Gardens 12 is a charming 3-bedroom, 2-bathroom townhouse, just 210 meters (3-minute walk) from Maxwell Beach on the South Coast of Barbados.Key Features:Prime Location: Located in Maxwell, Christ Church, just ...
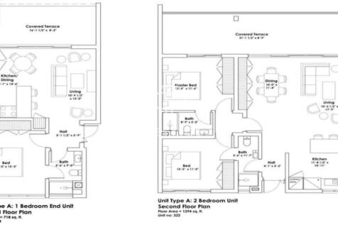
Unit #202 Lighthouse Bay - Luxury 3-Bedroom Beachfront CondoSpacious and beautifully furnished 3-bedroom, 3-bathroom condo in the exclusive Lighthouse Bay Condos. This secure development features a shared pool, elevator access, secure parking, and ample storage.
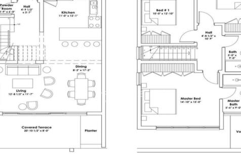
Apartment 102 at Maxwell Beach Villas is a 2-bedroom, 2-bathroom gem nestled along the stunning South Coast of Barbados, perfectly situated between the vibrant St. Lawrence Gap and the charming town of Oistins. This beautifully appointed ground-floor apartment offers breathtaking vistas of the Ca...
Hythe Gardens 12 – Tropical Townhouse for Sale in Maxwell, Christ Church, BarbadosHythe Gardens 12 is a charming 3-bedroom, 2-bathroom townhouse, just 210 meters (3-minute walk) from Maxwell Beach on the South Coast of Barbados.Key Features:Prime Location: Located in Maxwell, Christ Church, just ...
Rates updated every 24hrs and provided by Lumon
Visit our currency page









































