Properties For Sale in Cincinnati
32 results
Welcome to The Trillium House - a Mt. Adams masterpiece by Tisley Architects where European-inspired charm meets modern urban living. This 4-bed, 4-bath LEED Platinum home with tax abatement through 2032 blends historic warmth with contemporary, sustainable design. Enter through the gated courtya...
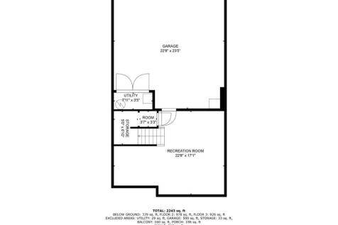
Jaw Dropping, Custom Home by Wieland Builders in Walworth Junction, site of Homearama 2020, with incomparable River Views. Featuring ~5600 sf, 5 Levels, and an ELEVATOR to navigate it all with ease. The lower level caters perfectly to entertaining with your very own golf simulator and flex space ...
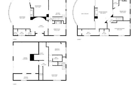
Showings beginning 09/09. Behind iron gates on Cincinnati's Westside lies historic Covedale Gables, a 1921 Tudor estate spanning nearly 9 acres of pastures & woodlands. Designed by R.C. Hunter & Brothers, the estate begins with a charming gate lodge before opening to the 4,000+ sqft main residenc...
This beautiful custom built 5 bedroom home is situated in a private and secluded Mount Lookout location. The first floor features a two-story entry, formal study, and gourmet kitchen with high-end appliances. Other first floor features include great room with stone fireplace and 14' beamed ceilin...
Newly renovated mixed-use building for sale in Pendleton across from the Casino! This is a great opportunity for a live/work space or used as an investment property. The top floor unit is the epitome of industrial chic w/polished concrete floors, 13ft ceilings, exposed beams & large south facing ...
Welcome to 4045 Rose Hill Avenue in North Avondale. This beautifully restored 19th-century home features 6 beds & 4.5 baths. Inside, be captivated by the foyer showcasing the original wood staircase & soaring two-story windows. Enjoy the woodwork & meticulously refurbished architectural elements ...
Welcome to your turn-key Riverside home in Twain's Point. End-unit, luxury upgrades thruout, lock & leave lifestyle. Riverfront park system at your doorstep: walking paths, pickle ball, bike lanes. Moments to dwntwn dining, shopping, events, employers. Fabulous views of Ohio River, hills of KY, C...
Discover urban elegance at 309 Mulberry Street in Mt. Auburn, where modern design meets stunning city views. Built 7 years ago and LEED Platinum certified, this residence offers tax abatement through 2032, blending luxury with sustainability. Just minutes from downtown Cincinnati, it provides eas...
Welcome to Glen Terrace, the stately home designed by acclaimed Cincinnati architect James W. McLaughlin for Clifton Barron, Sir Alfred Goshorn: A Timeless Piece of History. Step into a world of elegance and Romanesque design in this magnificent home, where incredible original millwork greets you...
Extraordinary Italian influenced architecture meets modern luxury in this fully renovated, turnkey historic home. Every space is exquisitely finished with custom, handcrafted Tiger Maple cabinetry by renowned artisan David T. Smith, showcased in the kitchen, butler's pantry, built-ins, and baths....
Experience refined city living in Prospect Hill, where historic elegance meets modern luxury. Enjoy the breathtaking skyline from every level, including a rooftop patio with panoramic views. Set on a rare double lot with a fully fenced yard and off-street parking for two, this home combines charm...
Amazing Italianate architecture in this beautiful historic home with a carriage house included. A unique city retreat! The detailed woodwork and ornate moldings offer sophistication that showcases the craftsmanship that went into this home's construction. 5 operable fireplaces with original marbl...
Truly Stunning Classic Tudor Home Designed by Samuel Hannaford in the Clifton Gaslight District! 3 stories (4 levels) of world class architecture featuring a gourmet chef's kitchen with custom island and copper sink! Multiple intricate stained-glass windows, alleged Rookwood Fireplace, pocket doo...
Perched high in Mt. Auburn and overlooking the Cincinnati skyline, this 3 story stunner delivers the kind of views people dream about. Every level opens to it's own private deck and the panorama gets more jaw dropping with each flight of steps you take. Inside the home is beautifully appointed fr...
Bright, inviting, & full of charm, this beautifully updated home offers exceptional comfort inside & out. The spacious front porch is perfect for relaxing, while the backyard is an entertainer's dream, featuring a stamped concrete patio w/ a gas fire pit, built-in grill, & outdoor TV. Inside, the...
Sophisticated style and high-end design to offer you an exciting lifestyle in this walkable location! Your opportunity to relax and entertain with no maintenance. LEED Gold Certified gives you fantastic energy savings and $562,000 tax abatement for 15 years. Top of the line home featuring some 13...
The essence of cool. There's no better way to describe this beautifully remodeled, trendy home in Cincinnati's most vibrant new neighborhood, just steps from TQL Stadium. Enjoy 9 more years of a Gold LEED tax abatement & witness the surrounding growth as Cincinnati's newest multi-use development ...
Impressive English Arts and Crafts architectural details, just a few blocks from Hyde Park Square! Relax and wave to neighbors from the welcoming front porch. Stunning craftsmanship with 3 fireplaces, stained glass, and original woodwork. Extensive renovations, including high-end Kitchen with Sub...
A Queen City hidden gem awaits in the heart of Historic Prospect Hill. This rare Italianate treasure is steeped in history. Once a working stable house, this distinctive property was reimagined in early 1990s by architect Donald Beck, who infused it with historic character and modern artistry. At...
Fantastic Mount Lookout home located on a beautiful cul-de-sac street! You will enjoy this convenient yet quiet location in walking distance to the Square, Swim Club, parks, and more. With 4 Bedrooms & 4 Bathrooms, this house offers space for everyone. Relax on the large covered front porch with ...
Classic brick Hyde Park home with 6 bedrooms and 4 bathrooms on great street! Charming covered porch with swing. Beautiful hardwood floors throughout the 1st and 2nd floor. Crown molding, bay windows and stained glass. Kitchen bump out with Butler's Pantry and Breakfast Room. Convenient Half Bath...
LEED Certified custom home with luxury finishes, prime walkability, and tax abatement through 2029! Low maintenance living featuring 2,850 square feet of open and welcoming space. A wonderful spot for your active lifestyle near bike trails, kayaking, parks, and downtown Cincinnati! Entertaining i...
Welcome to this stunning 5-bedroom, 3.5-bath home over set on a 1.5-acre lot. The heart of the home is the beautifully updated kitchen with stainless steel appliances, seamlessly opening to a dramatic great room cathedral ceiling and striking stone fireplace perfect for everyday living and entert...
Discover this gorgeous Mt. Lookout gem situated on a spacious lot just blocks from vibrant Mt. Lookout Square. This 4-bedroom home offers a perfect blend of elegance and comfort, featuring a gracious primary en-suite, two additional full bathrooms, and a stylish guest powder room. Rich hardwood f...
Rates updated every 24hrs and provided by Lumon
Visit our currency page