Properties For Sale in Draguignan
14 results
For Sale in Draguignan, House of 260 m2 on one level on land of 2.6 ha of olive trees, 3 Bedrooms with their Bathrooms, Traditional Swimming Pool 12x5 m. Possibility of expansion of 36 m2 to create a 4th Bedroom with Bathroom. Quiet without being isolated, 5 minutes by car from the city center. A...
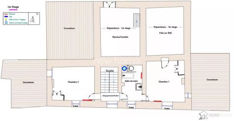
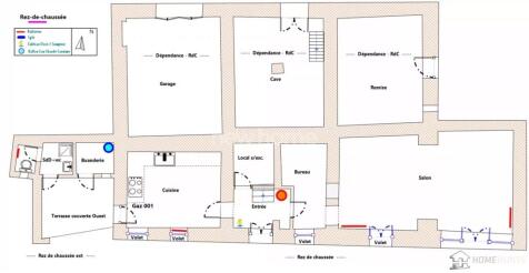
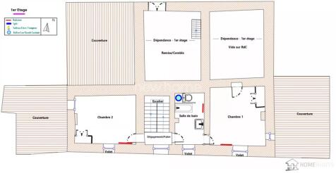
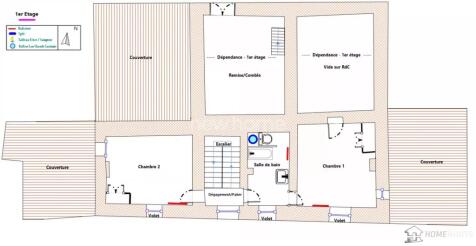
Ref. - DRAGUIGNAN - Exclusive listing. Set in the shade of wisteria vines and surrounded by magnificent 8,000 m² grounds, this stunning stone country house offering approximately 350 m² of living space and 150 m² of outbuildings and garages will charm you with its authentic character, featuring...
Exclusivity - Entering this beautiful domain takes you to a different era. A beautiful drive lined with cypresses takes you through the perfectly maintained garden to the front of the mansion, where elegant large stairs take you to the front terrace and its beautiful large entry doors. You enter int
Bastide of 238 m², with independent studio of 29.6 m² on a garden of 8000 m², situated in a superb location in Draguignan. Spacious, bright and sunny property with four bedrooms and spacious living areas. The property has a beautifully landscaped, enclosed garden, a heated saltwater swimming pool...
Located in the heights of Draguignan, near the city center, discover this charming house of approximately 130 m2 offering a view of the city and the surrounding hills. The house benefits on the garden level from a pretty veranda, a living room, a large and bright fitted kitchen, two bedrooms and a b
Nestled in a highly desirable and peaceful area, this exceptional property offers absolute privacy and stunning views over its surroundings. Set on a generous 5,041 m2 plot adorned with olive trees, the home is completely quiet and not overlooked, providing a true retreat from the everyday. The expa

Rates updated every 24hrs and provided by Lumon
Visit our currency page