Properties For Sale in Playa Flamenca, at least 3 beds, £140,000 – £190,000
10 results
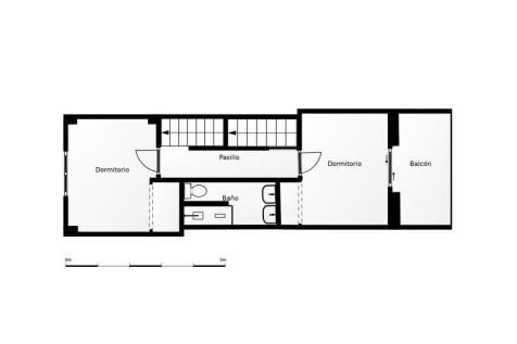
Situated in the highly sought-after area of Playa Flamenca, this well-maintained 3 bedroom, 1 bathroom townhouse offers an ideal combination of comfort, convenience, and coastal living. Perfectly positioned just a couple of minutes’ walk from a wide range of local amenities, including a large Car...
We present this townhouse triplex in Villamartín, Orihuela Costa, in a charming residential area consisting of only 9 homes. Enjoy a home with a privileged location, just 3 km from La Zenia Beach and 5 minutes from La Zenia Boulevard Shopping Center, surrounded by supermarkets, restaurants, and a...
~1.997 / 5.000~In the heart of Playa Flamenca, just a short walk from the Zenia Boulevard shopping center, beaches, sports facilities, leisure areas, and schools, you'll find this beautiful and bright south-facing semi-detached triplex.~~The property is located within a gated community with autom...
Rates updated every 24hrs and provided by Lumon
Visit our currency page

































