Properties For Sale in Ranelagh
15 results
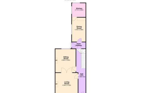
A most impressive 4-bedroom two-storey over garden level Italianate Victorian residence with an 82ft (approx.) south-facing garden. Meticulously restored and modernised, this beautiful home retains its elegant period character. (contd...)
Overlooking the picturesque Mount Pleasant Square, this beautifully presented three-bedroom, end of terrace, Victorian home seamlessly blends classic period elegance with contemporary comfort. Laid out over three levels, measuring approx. (contd...)
Sherry FitzGerald is delighted to present 1A Mountpleasant Avenue Upper, a beautifully presented end-of-terrace period residence ideally positioned in one of Dublin 6's most desirable and convenient locations, equidistant from both Ranelagh and Rathmines. (contd...)
Number 17 Cullenswood House is a superbly located two bedroomed apartment on the second floor in this well-established residential development, close to the heart of Ranelagh Village. The apartment could not be more conveniently positioned, close to St. (contd...)
A wonderful opportunity arises to acquire this most attractive one bedroom 3rd floor apartment, perfectly located in this popular gated development. The apartment has been updated throughout with a modern kitchen and shower room and is nicely presented and extends to 42 sq. (contd...)
KELLY BRADSHAW DALTON is delighted to introduce to the market Apartment 36, Fitzwilliam Court, Winton Road, Ranelagh, Dublin 6.An impressive one bedroom apartment on the second floor in this most convenient development. Superbly located on Winton Road adjacent to Fitzwilliam Lawn Tennis Club and i
Rates updated every 24hrs and provided by Lumon
Visit our currency page
















