Properties For Sale in Western Germany
19 results
M2656 - Exclusive aparthotel with historic charm and modern comfort in one of Germany's most sought-after regions on the German Wine Route. This extraordinary property has been lovingly restored and offers a unique combination of traditional architecture and contemporary comfort. The quiet locati...
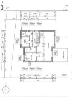
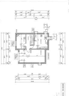
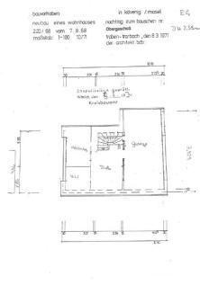
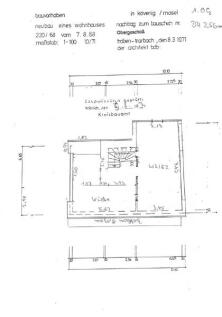
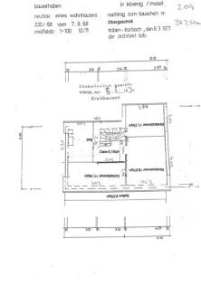
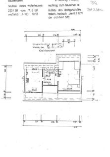
M1251 - For sale is the farmstead of a traditional former winery on the outskirts of Heuchelheim-Klingen, a charming wine village in the Southern Palatinate. It comprises two plots of land with spacious living and usable areas as well as an active event location with a catering licence. The prope...

Rates updated every 24hrs and provided by Lumon
Visit our currency page






































































































































































































































































































































































































































































