Properties For Sale by Welcome Estates, Alicante, including sold STC
922 results
Regenerated Residential Complex in Lomas de Cabo Roig – Renovated ApartmentsApartments in a Prime LocationDiscover this exclusive opportunity to own a renovated apartment in Lomas de Cabo Roig, a sought-after area in Orihuela Costa. This residential complex, originally built in 2008, is undergoin...
NEW BUILD LUXURY VILLA IN CAMPOAMORNew Build villa with the most exclusive design located in Campoamor only two hundred and fifty metresfrom the beach.Villa build over three floors, has four bedrooms, four bathrooms, guest toilet, open-plan kitchen with the lounge area, fitted wardrobes, private ...
Welcome are pleased to present for sale this incredible 3 bedroom villa located on Las Colinas Golf Resort. These villas are built in the heart of La Colinas build on spacious plots and providing nice views of the golf course and towards the sea. Designed for the luxury market, each home featur...
NEW BUILD LUXURY VILLA IN ALTEA Fabulous New build detached villa situated in the prestigious urbanization of Altea . Fantastic villa distributed over three floors and has 4 spacious bedrooms and five bathrooms. On the ground-floor, you find a large living room with sitting and dining areas, wit...
We are very excited to be able promote a new project with a builder we know well, the project is based around the Font del LLop Golf Course and offers a selection of opportunities that will suit all budgets and personal requirements, this project will also form part of Welcome Estates Premier Col...
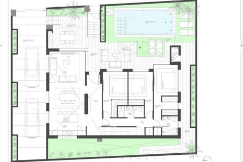
Frontline Lake Villas in Santa Rosalía Lake Resort, MurciaNew-Build Luxury Villas in a Unique Mediterranean ResortDiscover an exclusive collection of newly built villas in Santa Rosalía Lake and Life Resort, a premier private gated development situated in the Region of Murcia. These luxurious hom...
Phenomenal, independent villa with a build size of almost 500m2 and a private swimming pool on a plot of approximately 7,000m2 . This detailed & well kept gem of a property was designed by the current owners with all the features of the house being carefully chosen to best represent the b...
Here is a fantastic opportunity to purchase an AMAZING COUNTRYSIDE VILLA which has just come on the market. The villa is WEST FACING and located close to SAN MIGUEL DE SALINAS on the COSTA BLANCA SOUTH. This FABULOUS VILLA has views across the countryside and is less than a 5-minute drive to all ...
Here is a fantastic opportunity to purchase a STUNNING MODERN VILLA which has just come on the market with us. The villa was completed in 2024, and is located in BENIJOFAR on the COSTA BLANCA SOUTH. This FABULOUS VILLA is only a short walk from a selection of restaurants, bars, and shop`s and off...
Modern Luxury villa in La Marina urbanization, San Fulgencio Elegant Design and Exceptional Comfort Discover this modern new villa in La Marina urbanization, an exclusive residential enclave belonging to San Fulgencio, on the southern Costa Blanca. Designed with timeless elegance and contemporar...
Fabulous, one of a kind townhouse with a build size of 542m 2 and located very close to the center of Torrevieja. This high quality property was designed & built by the current owners with all the features of the house being carefully chosen to best represent its incredible architecture. ...
New Build villa in Las Colinas Golf & Country Club, OrihuelaExclusive Location in Costa Blanca SouthThis amazing new build villa is located in Las Colinas Golf & Country Club, one of the most prestigious resorts in Orihuela Costa. Nestled in a lush 330-hectare valley surrounded by...
Contemporary Luxury villa in La Marina urbanization, Costa BlancaModern Design and Exceptional ComfortDiscover this amazing single-level luxury villa in La Marina urbanization, one of the most prestigious residential areas of San Fulgencio, Costa Blanca. Designed to blend elegant architecture wit...
NEW CONSTRUCTION VILLAS 250 m FROM THE BEACH IN CAMPOAMOR In Dehesa de Campoamor you will find these new construction villas for the most demanding clients. A complex of independent villas located in one of the best areas of Campoamor, just four minutes from the beaches of Orihuela and around all...
NEW CONSTRUCTION VILLAS 250 m FROM THE BEACH IN CAMPOAMOR In Dehesa de Campoamor you will find these new construction villas for the most demanding clients. A complex of independent villas located in one of the best areas of Campoamor, just four minutes from the beaches of Orihuela and around all...
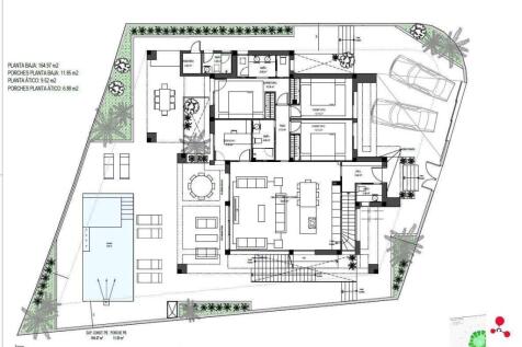
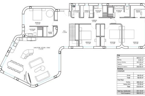
Nestled in the sought-after neighborhood of La Mata, this exceptional villa offers a harmonious blend of luxury, comfort, and Mediterranean charm. Spanning three levels, the residence boasts five spacious bedrooms and five well-appointed bathrooms, providing ample space for family living or hosti...
THIS PROPERTY OFFERS A 1% WELCOME GIFT!! We are very excited to be working with one of the best builders in the area and to offer you this stunning villa, which offers 3 bedrooms and 3 bathrooms and is part of Welcome Estates Premier Collection. Here is a breakdown of what this villa offers. ...
THIS PROPERTY INCLUDES A 1% WELCOME ESTATES GIFT This modern villa in Las Colinas Golf & Country Club offers stunning, unobstructed views and a private pool. The property features 3 bedrooms, 2 bathrooms, and is situated in a quiet, private location with views of the natural forest. Its ...
NEW BUILD VILLAS IN FINESTRAT New Build residential of modern villas located in Sierra Cortina, Finestrat. Modern style New Build villas with three bedrooms, three bathrooms, open-plan kitchen, large living room with access to the terrace, private garden with the pool and parking space. Villas h...
NEW BUILD VILLAS IN ALTAONA GOLF RESORT, MURCIA New Build residential of lovely villas in Altaona Golf resort, Murcia. Located in a privileged environment where we can live quietly, in contact with nature and the mountains, we achieve quality of life, fresh air and open spaces. New Build Modern v...
LUXURY VILLA ON THE BEACH A two minutes walk from the beach and the possibility of enjoying more than 300 days of sunshine a year with an average temperature of 20º C! villa with four bedrooms and four bathrooms, fully equipped. Built on a large plot to enjoy its garden and private pool, Aerother...
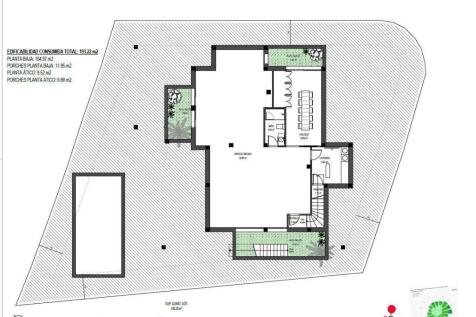
We are pleased to offer this amazing plot of land for sale in Cabo Roig, just a short walk away from the beach. If you are looking at building your own home in Spain to call your new home, then stop looking, as this is a prime piece of land is in a terrific location. The plot is a flat piece of l...
NEW BUILD VILLAS IN PRIVATE GATED RESORT IN PROVINCE OF MURCIANew Build villas in private gated resort in the Murcia region, surrounded by excellent golf courses and just ten minutes from the sandy beaches of the Mar Menor Sea. 15 New Build independent villas has three bedrooms, three bathrooms, ...
NEW BUILD VILLAS IN FINESTRAT New Build Modern villas in Finestrat. Villas with four bedrooms and four bathrooms, open-plan kitchen with lounge area, terrace with simply incredible views over Benidorm, private garden with swimming pool and parking space. The lateral garden, adorned with cacti ...
Exclusive New-Build Villas in Algorfa Near La finca Golf ResortTranquil Living in a Prime LocationDiscover these luxurious new-build villas in the picturesque town of Algorfa, nestled on expansive rustic plots exceeding 10,000 m². Situated just two kilometres from La finca Golf Resort and very ne...
Rates updated every 24hrs and provided by Lumon
Visit our currency page



































