Lisbon, Lisbon, Portugal
- PROPERTY TYPE
Apartment
- BEDROOMS
2
- BATHROOMS
2
- SIZE
1,302 sq ft
121 sq m
Key features
- Ideal for those seeking a pied-à-terre in an authentic neighbourhood
- Elegant contemporary style apartment preserving local history and Pombaline architecture
- Priced up around 30% lower than similar renovated properties in Alfama
- Open-plan apartment with high ceilings, large windows and a balcony
- Steps away from all amenities, including Sé Cathedral, the stunning Miradouro de Santa Luzia and the Tagus River
- Located in Alfama, one of Lisbon's oldest and most captivating neighbourhoods
Description
Just set back from the riverside, the property enjoys a calm, private setting on Largo Terreiro do Trigo and is steeped in history as the building is flanked by Arco do Rosário on one side and the main entrance is accessed via an intimate cobbled square called Beco da Judiaria. From this superb spot, all amenities, Sé Cathedral and the beautiful Miradouro de Santa Luzia are within walking distance.
THE PROPERTY
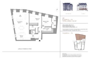
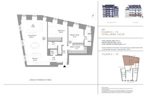
Respecting the history of the location and complementing the local architecture, the original facades of the buildings, complete with tile work and ornate metal balconies, will be carefully preserved. Inside, the property will be reimagined in an elegant contemporary style using premium materials including hardwoods, marble, Lioz stone and granite. The two-bedroom apartment spans 121 sqm, on the second floor and consists of a main room, a bathroom, a cloakroom and a small balcony with views over the square. The apartment benefits from an open-plan space and high ceilings. Large windows ensure that the property is bathed in light throughout the day.
INVESTMENT POTENTIAL
This apartment is well-suited for those seeking a pied-à-terre in an authentic neighbourhood. Renovated properties in Alfama are in limited supply and as a result, property here can command up to ?9,000 per sqm. With an average of ?6,100 per sqm, exquisite finishes and a superb location near the river, this apartment is very well-priced for this neighbourhood.
ATHENA ADVISERS - Added value and 360° purchase support since 2003
In addition to organising property viewings from our office on Avenida da Liberdade, our in-house teams also support clients through every step of the purchase process from finding the best Portuguese mortgage through to rental management. We also decode the paperwork and contracts and become the bridge between all the different legal and official parties involved in the purchase, guiding our clients through every step of the process.
Lisbon, Lisbon, Portugal
NEAREST AIRPORTS
Distances are straight line measurements- Lisbon(International)4.2 miles
Advice on buying Portuguese property
Learn everything you need to know to successfully find and buy a property in Portugal.
Notes
This is a property advertisement provided and maintained by Athena Advisers Ltd, Portugal (reference a018d00000Jg6S2AAJ) and does not constitute property particulars. Whilst we require advertisers to act with best practice and provide accurate information, we can only publish advertisements in good faith and have not verified any claims or statements or inspected any of the properties, locations or opportunities promoted. Rightmove does not own or control and is not responsible for the properties, opportunities, website content, products or services provided or promoted by third parties and makes no warranties or representations as to the accuracy, completeness, legality, performance or suitability of any of the foregoing. We therefore accept no liability arising from any reliance made by any reader or person to whom this information is made available to. You must perform your own research and seek independent professional advice before making any decision to purchase or invest in overseas property.





