Cagney Crescent Milton Keynes MK4

Letting details
- Let available date:
- 09/11/2025
- Deposit:
- £1,900A deposit provides security for a landlord against damage, or unpaid rent by a tenant.Read more about deposit in our glossary page.
- Min. Tenancy:
- Ask agent How long the landlord offers to let the property for.Read more about tenancy length in our glossary page.
- Let type:
- Long term
- Furnish type:
- Ask agent
- Council Tax:
- Ask agent
- PROPERTY TYPE
End of Terrace
- BEDROOMS
3
- BATHROOMS
2
- SIZE
Ask agent
Key features
- Parking
- Garage
- Families Allowed
Description
Located in the sought-after 'Oxley Park' development to the west of Milton Keynes the local area provides a vast range of amenities with the local centre just a 3 minute walk away. Also within walking distance is the comprehensive Westcroft shopping centre and Shenley Wood Business Park.
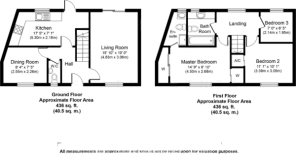
***Small Pets Accepted *** With Rentanyproperty.co.uk you can arrange a viewing 7 days week by contacting us on our portal. This is an Immaculate three Bedroom Family home in show home condition located on Hepburn Crescent in the sought- after Oxley Park. The property comprises of entrance hall, separate lounge open plan kitchen diner and utility room kitchen with built-in appliances like cooker, oven with space & plumbing for washing machine, fridge freezer and dishwasher. ***added bonus of a downstairs cloakroom***. The property also benefits an enclosed rear garden with access to the garage. Upstairs there are three bedrooms and a family bathroom with added bonus of having an en-suite to master bedroom. Other benefits included driveway and garage located to the side of the property. Book to view to avoid disappointment. Located in the sought-after 'Oxley Park' development to the west of Milton Keynes the local area provides a vast range of amenities with the local centre just a 3 minute walk away. Also within walking distance is the comprehensive Westcroft shopping centre and Shenley Wood Business Park.
Council tax C
EPC rating C
THE TENANTS WOULD BE RESPONSIBLE FOR COUNCIL TAX AND ALL UTILITY BILLS UNLESS SPECIFIED.
THE PROPERY DOES ACCEPT INDOOR OR OUTDOOR PETS subject to request.
PROSPECTIVE TENANTS MUST BE WILLING TO UNDERTAKE CREDIT REFERENCE CHECKS, PROVIDE EMPLOYERS REFERENCE (YOU MUST BE EMPLOYED WITH AN ANNUAL HOUSEHOLD INCOME OF 2.5 TIMES THE ANNUAL RENT) & PROVIDE PREVIOUS LANDLORDS REFERENCE IF APPLICABLE.
PROSESPECTIVE TENANTS LOOKING TO BOOK A VIEWING EXPERIENCE MUST BE PREPARED FOR THE LANDLORD OR THE AGENT TO ASK NECESSARY & RELEVANT QUESTIONS RELATED TO LIMIT THE SPREAD OF COVID-19 OUTBREAK AND PERSONAL CIRCUMSTANCES.
Rentanyproperty.co.uk is a member of Client Money Protection, The Property Ombudsman & DPS.
- COUNCIL TAXA payment made to your local authority in order to pay for local services like schools, libraries, and refuse collection. The amount you pay depends on the value of the property.Read more about council Tax in our glossary page.
- Ask agent
- PARKINGDetails of how and where vehicles can be parked, and any associated costs.Read more about parking in our glossary page.
- Yes
- GARDENA property has access to an outdoor space, which could be private or shared.
- Yes
- ACCESSIBILITYHow a property has been adapted to meet the needs of vulnerable or disabled individuals.Read more about accessibility in our glossary page.
- Ask agent
Energy performance certificate - ask agent
Cagney Crescent Milton Keynes MK4
Add an important place to see how long it'd take to get there from our property listings.
__mins driving to your place
About rentanyproperty.co.uk, Bedfordshire
Bedford Heights Brickhill Drive Bedford Bedfordshire MK41 7PH

Notes
Staying secure when looking for property
Ensure you're up to date with our latest advice on how to avoid fraud or scams when looking for property online.
Visit our security centre to find out moreDisclaimer - Property reference 3AB9OTG8. The information displayed about this property comprises a property advertisement. Rightmove.co.uk makes no warranty as to the accuracy or completeness of the advertisement or any linked or associated information, and Rightmove has no control over the content. This property advertisement does not constitute property particulars. The information is provided and maintained by rentanyproperty.co.uk, Bedfordshire. Please contact the selling agent or developer directly to obtain any information which may be available under the terms of The Energy Performance of Buildings (Certificates and Inspections) (England and Wales) Regulations 2007 or the Home Report if in relation to a residential property in Scotland.
*This is the average speed from the provider with the fastest broadband package available at this postcode. The average speed displayed is based on the download speeds of at least 50% of customers at peak time (8pm to 10pm). Fibre/cable services at the postcode are subject to availability and may differ between properties within a postcode. Speeds can be affected by a range of technical and environmental factors. The speed at the property may be lower than that listed above. You can check the estimated speed and confirm availability to a property prior to purchasing on the broadband provider's website. Providers may increase charges. The information is provided and maintained by Decision Technologies Limited. **This is indicative only and based on a 2-person household with multiple devices and simultaneous usage. Broadband performance is affected by multiple factors including number of occupants and devices, simultaneous usage, router range etc. For more information speak to your broadband provider.
Map data ©OpenStreetMap contributors.




