
Land for sale
Burwash Road, Heathfield, East Sussex, TN21
- PROPERTY TYPE
Land
- SIZE
Ask agent
Description
WD/2022/0067/F
PP-10518560_F - Planning Portal reference
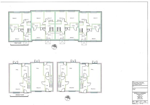
MAIN SPECIFICATIONS: ATTENTION PROPERTY DEVELOPERS * A RESIDENTIAL DEVELOPMENT SITE IN THE PROCESS OF OBTAINING PLANING PERMISSION POSSIBLY FOR 4 TERRACED THREE BEDROOMED HOUSES * EACH UNIT OF APPROXIMATELY 1000 SQUARE FEET * PRELIMINARY DESIGN SHOWS PARKING FOR NUMEROUS CARS AND REAR GARDENS.
DESCRIPTION: A potential residential development site for 4 terraced three bedroomed houses presently in the process of going for planning permission.
The houses are to be of an attractive Sussex style design and are to currently have parking set out in front of the development. Behind they are to have gardens.
Internally, these attractive currently submitted plans show the accommodation to comprise of an entrance hall, cloakroom, a kitchen, an open plan sitting room / dining room, a landing with three bedrooms leading off. The main bedroom one is to have an ensuite shower room, with the other two bedrooms benefitting from a family bathroom / shower room.
SITUATION: The development site currently being submitted for planning is known as the Heathfield Car Wash Site Burwash Road Heathfield.
INTERESTED PARTIES WHO WISH TO EXPRESS AN INTEREST TO OFFER PRIOR TO PLANNING POSSIBLY BEING APPROVED:
Early interest is recommended to be put forward to us the agent subject on a subject to planning basis in relation to the current planning in submission.
However, this is not to say that the existing site could also be purchased with its current use and planning. Although, we must make it clear the guide price would not be altering should a buyer be interested to acquire the site as it is.
AGENTS NOTE: Please note that these details have been prepared as a general guide and do not form part of a contract. We have not carried out a detailed survey, nor tested the services, appliances and specific fittings. Room sizes are approximate and should not be relied upon. Any verbal statements or information given about this property, again, should not be relied on and should not form part of a contract or agreement to purchase.
VIEWING STRICTLY BY APPOINTMENT WITH THE AGENT NEVILLE AND NEVILLE
Burwash Road, Heathfield, East Sussex, TN21
NEAREST STATIONS
Distances are straight line measurements from the centre of the postcode- Stonegate Station5.2 miles
- Crowborough Station6.1 miles

Notes
Disclaimer - Property reference FAN220009. The information displayed about this property comprises a property advertisement. Rightmove.co.uk makes no warranty as to the accuracy or completeness of the advertisement or any linked or associated information, and Rightmove has no control over the content. This property advertisement does not constitute property particulars. The information is provided and maintained by Neville & Neville Estate Agents, Cowbeech. Please contact the selling agent or developer directly to obtain any information which may be available under the terms of The Energy Performance of Buildings (Certificates and Inspections) (England and Wales) Regulations 2007 or the Home Report if in relation to a residential property in Scotland.
Map data ©OpenStreetMap contributors.





