Land for sale
Off Gaysfield Road, Fishtoft, Boston PE21 0SF
- PROPERTY TYPE
Land
- SIZE
415,998 sq ft
38,648 sq m
Description
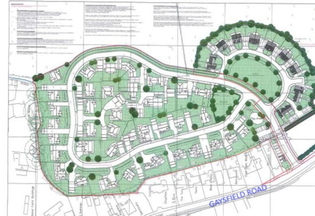
PLANNING MATTERS Planning Consent has been granted by Boston Borough Council in outline for the 46 Open Market residential units under Application Reference No: B-20-0488. The outline application states that it is for 46 residential dwellings and associated works with all matters reserved for later approval at land adjacent to and to the rear of Fishtoft Scouts, Gaysfield Road, Fishtoft, Boston, PE21 0SF. It is subject to a number of conditions.
The second consent for the affordable element has been granted for the proposed residential development of 20 Affordable dwellings and associated works at land adjacent to and to the rear of Fishtoft Boys Scouts, Gaysfield Lane, Fishtoft, Boston, PE21 0SF and has been granted as a full planning permission under Application Reference No: B-20-0489.
Both consents were granted on 12th November 2021 and are subject to a Section 106 Agreement. Copies of the consents and the very considerable amount of supporting and relevant information and documentation is available to download from the Boston Borough Council website. The Section 106 Agreement is available either for inspection at R Longstaff & Co office in Spalding or via the Boston Borough Council website. It is important that all interested parties ensure that they have studied the Section 106 agreement in detail as well as all relevant planning details and conditions prior to submitting an offer.
UPLIFT / CLAWBACK PROVISION The property will be sold subject to an uplift provision to secure a further payment to the vendor should the property be sold following the grant of planning permission for non-residential use or the development of the property for non-residential use, at a rate of 50% of any increase in value beyond the price paid for a period of 25 years.
In addition, the uplift clawback provision will also apply to any net increase in value should the number of developable units be increased in any subsequent planning consent.
TENURE The land is for sale with the benefit of freehold tenure and will be offered with vacant possession upon completion. If immediate use of the land is not required, then following completion, the Vendor will be pleased to enter into a cropping or tenancy arrangement on a short-term basis during the intervening period prior to development.
SERVICES Whilst we believe that mains services are available in the locality, it will be the responsibility of interested parties to carry out their own specific enquiries as to the availability, capacity, and the cost of practical connection for providing services to the site.
Interested parties must make their own specific enquiries with the relevant service providers to obtain the necessary information on which to understand the provision of and need for servicing of the site.
BASIS OF OFFERING The land is offered for sale on an unconditional basis with the benefit of freehold tenure and vacant possession, subject to the existing Planning Consents and Section 106 Agreement. Ideally, the vendor would prefer to sell the site as a whole and will give greater consideration to an overall offer but those who wish to submit offers for Lot 1 or Lot 2 separately are welcome to do so.
VAT VAT will not be chargeable on the purchase price unless the Vendor elects to waive the exemption to VAT (opt to Tax), in which case interested parties will be advised in advance.
LOCAL AUTHORITIES & SERVICE PROVIDERS Interested parties must make their own specific enquiries with the relevant service providers to obtain the necessary information on which to understand the provision of and need for servicing of the site.
THE SCOUT HUT (ADJOINING) AND ASSOCIATED MATTERS The local Scout troop own and occupy the Scout hut immediately on the left hand side of the proposed new access (into the site). They have an informal arrangement with the vendor concerning the grassed area to the right hand side of the proposed access which lies within the area bordered by the Leylandii trees.
It has been agreed that certain elements will be provided by the Developer as part of the contract sale agreement to the benefit of the Scout troop. A list of these is available upon application from the Vendors' agents. There is also a more detailed plan available showing the accommodation works requirement.
Brochures
BrochureOff Gaysfield Road, Fishtoft, Boston PE21 0SF
NEAREST STATIONS
Distances are straight line measurements from the centre of the postcode- Boston Station2.8 miles
Notes
Disclaimer - Property reference 101505013492. The information displayed about this property comprises a property advertisement. Rightmove.co.uk makes no warranty as to the accuracy or completeness of the advertisement or any linked or associated information, and Rightmove has no control over the content. This property advertisement does not constitute property particulars. The information is provided and maintained by Longstaff, Spalding. Please contact the selling agent or developer directly to obtain any information which may be available under the terms of The Energy Performance of Buildings (Certificates and Inspections) (England and Wales) Regulations 2007 or the Home Report if in relation to a residential property in Scotland.
Map data ©OpenStreetMap contributors.








