
Plot for sale
Wynyard Woods Self Build plots, Wynyard Village
- PROPERTY TYPE
Plot
- SIZE
Ask agent
Key features
- RESERVATIONS NOW BEING TAKEN
- AN EXCITING AND EXCLUSIVE OPPORTUNITY TO PURCHASE A SELF BUILD PLOT
- WITHIN A PRESTIGIOUS AND DESIRABLE LOCATION FOR 16 LUXURY HOMES
- FULLY SERVICED
- PRICES FROM £252,000
Description
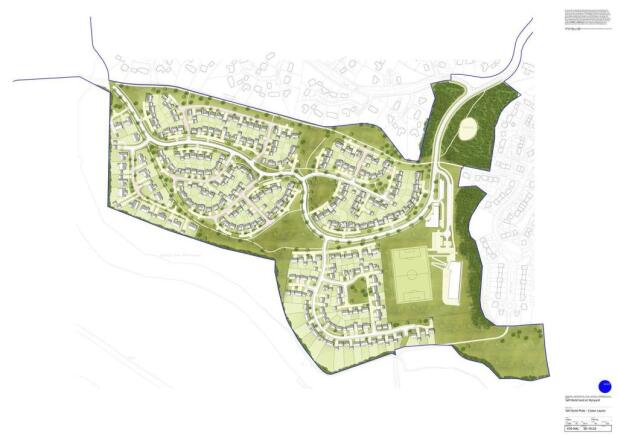
The proposed self-build layouts have been designed with the intention of creating a new residential community as part of and in-keeping with the wider Masterplan Proposals for the land south West of Wynyard Woods
Plots offered 'ready for development' with services.
. -
Viewings:- - Via Robinsons Regency & Rural
Tel:
Email:
Brochures
Wynyard Woods Self Build plots, Wynyard VillageWynyard Woods Self Build plots, Wynyard Village
NEAREST STATIONS
Distances are straight line measurements from the centre of the postcode- Billingham Station4.0 miles
- Stockton Station5.2 miles
- Middlesbrough Station6.5 miles



Notes
Disclaimer - Property reference 31410169. The information displayed about this property comprises a property advertisement. Rightmove.co.uk makes no warranty as to the accuracy or completeness of the advertisement or any linked or associated information, and Rightmove has no control over the content. This property advertisement does not constitute property particulars. The information is provided and maintained by Robinsons Regency and Rural, Wynyard. Please contact the selling agent or developer directly to obtain any information which may be available under the terms of The Energy Performance of Buildings (Certificates and Inspections) (England and Wales) Regulations 2007 or the Home Report if in relation to a residential property in Scotland.
Map data ©OpenStreetMap contributors.





