Martinhal Residences - Apartment, Parque das Nações, Lisbon, Portugal
- PROPERTY TYPE
Apartment
- BEDROOMS
3
- SIZE
Ask agent
Key features
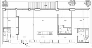
- 3 total bedrooms
- Balcony with 10.63 sq.m
- 1 parking space
- River view
- Modern and elegant apartments with top quality finishes
- Martinhal Circle private club offers a full range of services for the whole family
- Diversity of public transports and excellent accessibility
Description
Martinhal Residences is a contemporary luxury development located in the south side of Parque das Nações, on the main avenue.
Created by the award-winning Elegant Group owner and developer of Martinhal Family Hotels & Resorts, specialized in luxury family experiences and designed by internationally renowned architect, Eduardo Capinha Lopes, Martinhal Residences offers comfortable, stylish and modern apartments and combines luxury family living with magnificent amenities with Martinhal's excellent services, in a modern part of Lisbon.
This unique project combines a careful choice of luxury finishes with generous outdoor areas and combines a purely residential component with another that is operated by Martinhal Hotels & Resorts as branded serviced apartments.
The housing component includes typologies ranging from 3 up to 4 bedroom apartments, with areas between 65 sq. m. and 196 sq.m.
Services offered by the resort include: 24-hour security, access to the private Martinhal Circle club with heated indoor and outdoor pools, a gym, an outdoor playground, Martinhal's award-winning Kids Club, co-working area, room for yoga and other classes, an events space and a café-lounge for social and business meetings.
Additionally, it is possible to make use of other services provided by the hotel, 24 hours a day, such as: reception, cleaning, laundry, maintenance and repair services, which will be charged separately.
Location
Martinhal Residences is located in the modern area of Parque das Nações which offers centrality, convenience, functionality, culture, a good quality of life and tranquillity.
Parque das Nações is the most modern neighbourhood in Lisbon, located in the eastern part of the city, on the banks of the Tagus River, and is the result of careful urban planning developed since 1998, the year in which the Universal Exhibition of Lisbon took place with the theme "The oceans: a heritage for the future" to commemorate the 500th anniversary of the Portuguese maritime discoveries.
Parque das Nações offers a wide range of shops, restaurants, culture and services within walking distance, as well as several green spaces, cycle paths, footpaths, sports facilities and hospitals, all of which have contributed towards making this area a reference in terms of housing and tertiary activities.
Parque das Nações benefits from easy access to Lisbon International Airport, the city centre and the city's main road networks. Near Martinhal Residences, Gare do Oriente by Arq. Santiago Calatrava is a hub for public transport including bus, metro, train, coaches and underground, allowing urban, national and international connections. Some of the landmarks of Parque das Nações are the Lisbon Oceanarium, Vasco da Gama shopping centre, the Lisbon Exhibition and Congress Centre, Altice Arena concert hall and Vasco da Gama’s Bridge.
Martinhal Residences - Apartment, Parque das Nações, Lisbon, Portugal
NEAREST AIRPORTS
Distances are straight line measurements- Lisbon(International)1.8 miles
Advice on buying Portuguese property
Learn everything you need to know to successfully find and buy a property in Portugal.
Notes
This is a property advertisement provided and maintained by Savills Global Residential Property, Portugal (reference 208664_LBN220151) and does not constitute property particulars. Whilst we require advertisers to act with best practice and provide accurate information, we can only publish advertisements in good faith and have not verified any claims or statements or inspected any of the properties, locations or opportunities promoted. Rightmove does not own or control and is not responsible for the properties, opportunities, website content, products or services provided or promoted by third parties and makes no warranties or representations as to the accuracy, completeness, legality, performance or suitability of any of the foregoing. We therefore accept no liability arising from any reliance made by any reader or person to whom this information is made available to. You must perform your own research and seek independent professional advice before making any decision to purchase or invest in overseas property.





