Plot for sale
The Spinney, Middleton St. George, Darlington
- PROPERTY TYPE
Plot
- SIZE
Ask agent
Description
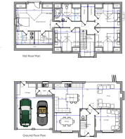
The 2 Detached Dormer Dwelling living space will comprise: 4 Double Bedrooms (5.72m x 5.64m/18'9" x 18'6" Master Suite), an amazing 10.37m x (4.58m max) 3.93m/34'0" x (15'0" max) 12'10" ‘Living-Kitchen’, Sitting Room, Dining Room & Family Room/Snug; Utility Room & Cloakroom/WC. Integral Double Garage double, ample Parking & large Gardens.
Pleasant open but screened setting, close to Middleton St. George with its local amenities, primary schooling etc, & excellent accessibility: Dinsdale station (London kings Cross 2.5 hours), Teesside airport & the A67, A66 & A1(M) routes.
General - A SUPERB LOW-DENSITY DEVELOPMENT SITE (former paddock) of about 0.70 acres in all, with PLANNING PERMISSION for 2 large DORMER-STYLE HOMES on about 0.44 acres (Planning Notice 16/00500/FUL) NB: The foundations have been laid on the 2 PLOT SITE securing the planning permission…
The 2 Detached Dormer Dwelling living space will comprise: 4 Double Bedrooms (5.72m x 5.64m/18'9" x 18'6" Master Suite), an amazing 10.37m x (4.58m max) 3.93m/34'0" x (15'0" max) 12'10" ‘Living-Kitchen’, Sitting Room, Dining Room & Family Room/Snug; Utility Room & Cloakroom/WC. Integral Double Garage double, ample Parking & large Gardens.
Pleasant open but screened setting, close to Middleton St. George with its local amenities, primary schooling etc, & excellent accessibility: Dinsdale station (London kings Cross 2.5 hours), Teesside airport & the A67, A66 & A1(M) routes.
NB: Further POTENTIAL ONE-PLOT site subject to planning. (The remaining GREENFIELD SITE is for sale via an Option - agreed non-refundable (but inclusive) option fee with an agreed balance to follow should planning be successful).
Planning - 19/00183/FULL: Application under Section 73 of the Town and Country Planning Act 1990 for variation of condition no. 4 (approved plans) attached to planning permission 16/00500/FUL to permit changes in design and siting of 2 no. dormer bungalows and external landscaping works | 5B The Spinney
MIDDLETON ST GEORGE DARLINGTON DL2 1HD.
Services - Mains Drainage, Water, Electricity & Gas available nearby.
Brochures
The Spinney, Middleton St. George, DarlingtonBrochureThe Spinney, Middleton St. George, Darlington
NEAREST STATIONS
Distances are straight line measurements from the centre of the postcode- Dinsdale Station0.6 miles
- Teesside Airport Station1.1 miles
- Allens West Station3.6 miles



Notes
Disclaimer - Property reference 31525098. The information displayed about this property comprises a property advertisement. Rightmove.co.uk makes no warranty as to the accuracy or completeness of the advertisement or any linked or associated information, and Rightmove has no control over the content. This property advertisement does not constitute property particulars. The information is provided and maintained by Alderson Estate Agents, Richmond. Please contact the selling agent or developer directly to obtain any information which may be available under the terms of The Energy Performance of Buildings (Certificates and Inspections) (England and Wales) Regulations 2007 or the Home Report if in relation to a residential property in Scotland.
Map data ©OpenStreetMap contributors.





