Water Lane, Angmering, BN16 4EJ
- SIZE AVAILABLE
164,657 sq ft
15,297 sq m
- SECTOR
Commercial development for sale
- USE CLASSUse class orders: B1 Business
B1
Key features
- Excellent communication links to A259 and A27
- Freehold
- Incredibly rare opportunity to purchase Sussex employment site
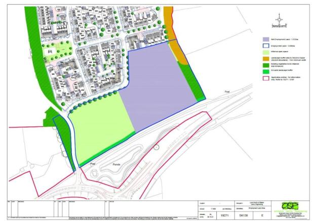
- 3.78 acres / 1.532 Hectares
- Outline planning consent for 60,000 sq ft of Class B1 accommodation
- Offers in excess of £2,000,000
Description
The property is located to South-East of the New Cala Homes Water Lane residential development. Water Lane is situated off the Angmering by pass road and provides almost immediate access to the A259. The A27 is located less than two miles which provides communications between Chichester (17 miles), Worthing (6 miles) and Brighton (18 miles).
The site will have a single point of access from within the new residential development
THE DEVELOPMENT
A joint development by Cala Homes and Bellway Homes. Set around a central green and featuring a children’s play area, ponds and open spaces. More than £7 million pounds has been invested in outdoor fitness and leisure, education and infrastructure through Section 106 contributions as part of the planning process.
Services
Cala Homes & Bellway Homes will be responsible for delivering the employment land services.
Areas
The employment area to be sold comprises 3.78 acres / 1.532 Hectares.
The outline consent allows for 6,000 square metres (64,500 sq ft). This reflects a healthy potential site density equivalent to approximately 40%
Tenure
The property is to be sold freehold with vacant possession.
Pricing & Terms
We are instructed to seek offers in excess of £2,000,000 (two million pounds) for the freehold interest subject to contract.
Timing
Cala Homes & Bellway Homes propose to deliver the employment zone road to base course, within seven months of start on site which is currently due for the beginning of Q3 2022. This provides an approximate timeframe for servicing the employment land at the end of Q2 2023.
Planning
Under planning reference A/40/18/OUT the site benefits from employment use under Class B1 Use.
No development within use Classes B2 or B8 are currently permitted.
Other uses may be considered subject to gaining the necessary consents.
EPC
We understand the property to be EPC exempt.
VAT
We understand that the property is not elected for VAT.
Anti-Money Laundering Requirements
In accordance with Anti-Money Laundering requirements, two forms of identification will be required from the purchaser or tenant and any beneficial owner together with evidence/proof identifying the source of funds being relied upon to complete the transaction.
Brochures
Water Lane, Angmering, BN16 4EJ
NEAREST STATIONS
Distances are straight line measurements from the centre of the postcode- Angmering Station1.6 miles
- Goring-by-Sea Station2.0 miles
- Arundel Station3.5 miles
Notes
Disclaimer - Property reference 103410-1. The information displayed about this property comprises a property advertisement. Rightmove.co.uk makes no warranty as to the accuracy or completeness of the advertisement or any linked or associated information, and Rightmove has no control over the content. This property advertisement does not constitute property particulars. The information is provided and maintained by Vail Williams, Crawley. Please contact the selling agent or developer directly to obtain any information which may be available under the terms of The Energy Performance of Buildings (Certificates and Inspections) (England and Wales) Regulations 2007 or the Home Report if in relation to a residential property in Scotland.
Map data ©OpenStreetMap contributors.




