
Prospect Road, St. Albans
- PROPERTY TYPE
Plot
- SIZE
Ask agent
Key features
- Land For Sale
- Planning Granted
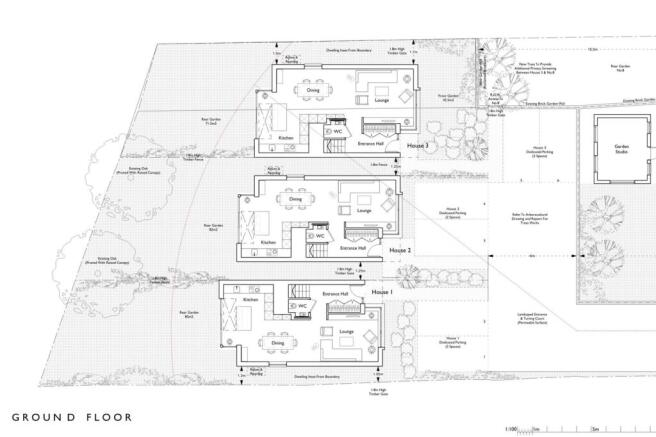
- Three Detached Houses
- Three Bedrooms
- Three Bathrooms
- Prime Location
- Chain Free
- More Land Required
Description
Within three months of being instructed by the vendor we have Exchanged contracts with Completion to take place mid November.
The land has been in the same family for almost a decade with its historic use being garden land. The site is relatively flat with a slight gradual slope from South to North toward the road. Access has been created following demolition of the garage.
The site is well shielded from the nearby railway line by dense vegetation, including two magnificent Oak Trees which will stay standing at the rear of the new homes gardens.
The Vendors originally obtained planning permission for three terraced houses solely in the garden of number 10, following the approval they purchased additional adjacent land to increase the size of the units and provide detached houses. This was refused, taken to appeal and won.
The site is perfectly located for all amenities, A 3 minute walk to St Albans Abbey train station, Verulam park and Westminster Lodge gym & spa and only a 10 minute walk into the city centre.
•Planning reference 5/2021/0415
•Full planning permission for three dwellings
•Close to amenities
•Close to Station
Brochures
Prospect Road, St. AlbansProspect Road, St. Albans
NEAREST STATIONS
Distances are straight line measurements from the centre of the postcode- St. Albans Abbey Station0.1 miles
- St. Albans Station0.6 miles
- Park Street Station1.4 miles
Notes
Disclaimer - Property reference 31883750. The information displayed about this property comprises a property advertisement. Rightmove.co.uk makes no warranty as to the accuracy or completeness of the advertisement or any linked or associated information, and Rightmove has no control over the content. This property advertisement does not constitute property particulars. The information is provided and maintained by Cassidy & Tate, St Albans. Please contact the selling agent or developer directly to obtain any information which may be available under the terms of The Energy Performance of Buildings (Certificates and Inspections) (England and Wales) Regulations 2007 or the Home Report if in relation to a residential property in Scotland.
Map data ©OpenStreetMap contributors.





