
Plot for sale
Land Adjacent Maes Awel, Bont Dolgadfan, Llanbrynmair, Powys, SY19
- PROPERTY TYPE
Plot
- SIZE
Ask agent
Key features
- Residential Building Plot
- Full Planning for One Dwelling
- In pretty village of Bont Dolgadfan
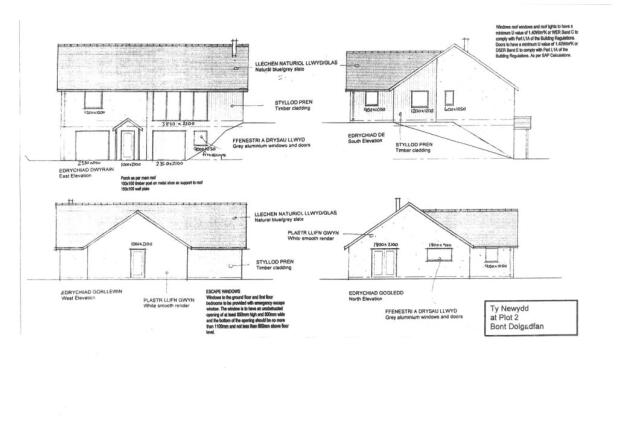
- Contemporary split level design
- Site extending to around 0.19 acres
- Foundations & Retaining Walls built
- Mains services available nearby
- Newtown 18 miles, Machynlleth 11 miles
- Elevated position with superb views
- No Requirement for Sprinkler System
Description
Conveniently located around 2 miles from the village of Llanbrynmair with village shop, cafe, public house and primary school with further facilities being available in the market towns of Newtown 18 miles, Machynlleth 11 miles and Llanidloes 13 miles.
Being in an elevated position the plot enjoys fantastic panoramic views over the village and surrounding countryside and borders a meadow on the northern side.
Works have commenced on site with the majority of foundations having being laid, retaining and ground floor bearing walls installed and some of the drainage installation in place.
All works have been done under building regulations and at the time the building regulations application was approved there were no requirements for a sprinkler system.
Designed as a two bedroom dwelling there is potential to create a third bedroom on the lower ground floor.
PLANNING
The plot has full planning permission (P/2011/0760 & P/2017/1338 for the erection of a dwelling house and formation of vehicular access. This is an extant planning permission as all pre-commencement conditions have been satisfied and the works commenced prior to the planning expiry date.
VEWING
At any Reasonable Time.
PLANNING
The plot has full planning permission (Ref: P/2011/0760 & P/2017/1338) for the erection of a dwelling house and formation of vehicular access.
This is an extant planning permission as all pre-commencement conditions have been satisfied and the works commenced prior to the planning expiry date.
MONEY LAUNDERING
Please note a charge of £36 per person will be applied to cover mandatory Anti-Money Laundering checks for Buyers
Brochures
ParticularsLand Adjacent Maes Awel, Bont Dolgadfan, Llanbrynmair, Powys, SY19
NEAREST STATIONS
Distances are straight line measurements from the centre of the postcode- Machynlleth Station8.8 miles
Notes
Disclaimer - Property reference NEW220561. The information displayed about this property comprises a property advertisement. Rightmove.co.uk makes no warranty as to the accuracy or completeness of the advertisement or any linked or associated information, and Rightmove has no control over the content. This property advertisement does not constitute property particulars. The information is provided and maintained by Morris Marshall & Poole, Newtown. Please contact the selling agent or developer directly to obtain any information which may be available under the terms of The Energy Performance of Buildings (Certificates and Inspections) (England and Wales) Regulations 2007 or the Home Report if in relation to a residential property in Scotland.
Map data ©OpenStreetMap contributors.







