Unit 12 Elm Farm Business Park, Norwich Common, Wymondham, Norfolk, NR18 0SW
- SIZE AVAILABLE
5,490 sq ft
510 sq m
- SECTOR
Office to lease
Lease details
- Lease available date:
- Ask agent
Key features
- Medical Centre/Health Services Use
- 2-storey purpose built surgery
- Parking for 25 cars
- Conveniently located on the old A11 between Norwich and Wymondham
- Fast expanding market town with population of 17,000
- Additional 1,800 homes planned by 2038
- Available from Q2 2024
Description
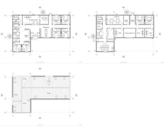
The new Medical Centre/Health Services building is available to pre-let.
The ground floor will comprise a reception/admin area, medical records room, seating and waiting areas, 4 consultation rooms, and 2 nurses rooms. On the first floor are further consultation rooms, staff admin and amenity facilities.
Externally, the property is served by 25 car parking spaces, 3 disabled spaces and 10 cycle spaces.
The building has been designed to reflect the traditional appearance of the existing farm buildings which have been converted to offices.
Units 1-11 are new light industrial/warehouse units ranging in size from 1,500 to 2,282 sq ft available from Q2 2024.
Brochures
Unit 12 Elm Farm Business Park, Norwich Common, Wymondham, Norfolk, NR18 0SW
NEAREST STATIONS
Distances are straight line measurements from the centre of the postcode- Wymondham Station1.9 miles
- Spooner Row Station4.3 miles
Notes
Disclaimer - Property reference 335291LH. The information displayed about this property comprises a property advertisement. Rightmove.co.uk makes no warranty as to the accuracy or completeness of the advertisement or any linked or associated information, and Rightmove has no control over the content. This property advertisement does not constitute property particulars. The information is provided and maintained by Arnolds Keys, Norwich - Commercial. Please contact the selling agent or developer directly to obtain any information which may be available under the terms of The Energy Performance of Buildings (Certificates and Inspections) (England and Wales) Regulations 2007 or the Home Report if in relation to a residential property in Scotland.
Map data ©OpenStreetMap contributors.





