Plot @ Penlleniau, Pwllheli LL53
- PROPERTY TYPE
Plot
- BEDROOMS
3
- BATHROOMS
1
- SIZE
Ask agent
Key features
- Chaniatâd cynllunio ar gyfer eiddo 3 llofft
- Lleoliad cyfleus i'r dref
- Building plot for 2 storey dwelling
- Convenient location for the town's amenities
Description
Safle i adeiladu t yn mwynhau golygfeydd dros dref Pwllheli. Cyfle arbennig i gael cartref 3 llofft yng nghanol y dref oddi ar lwybr troed cyhoeddus rhwng Penlon Ll n ac Allt Salem.
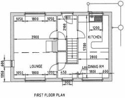
Elevated plot of land with planning permission C22/1115/45/LL to construct a detached 2 storey house with 3 bedrooms commanding views over Pwllheli. Located off the public footpath between Lleyn Street and Salem Terrace the construction process will be a challenge for the discerning purchaser. The seaside town of Pwllheli is known as the unofficial capital of the Ll n Peninsula. The town offers a range of amenities including Marina, Sailing Academy, Golf Club, schools, further education college, a range of independent shops as well some well-known branded stores.
PERCHNOGAETH | TENURE Freehold.
GWASANAETHAU | SERVICES (NOT TESTED) We believe that mains water, electric, and drainage are available.
CYFARWYDDIADAU | DIRECTIONS Located off a public footpath in between Lleyn Street and Allt Salem. Map coordinates: 52.890048 -4.420559
Brochures
Brochure 1Plot @ Penlleniau, Pwllheli LL53
NEAREST STATIONS
Distances are straight line measurements from the centre of the postcode- Pwllheli Station0.2 miles
- Abererch Station2.0 miles
- Penychain Station3.5 miles

Notes
Disclaimer - Property reference S159340. The information displayed about this property comprises a property advertisement. Rightmove.co.uk makes no warranty as to the accuracy or completeness of the advertisement or any linked or associated information, and Rightmove has no control over the content. This property advertisement does not constitute property particulars. The information is provided and maintained by Eiddo Susan Jones Properties, Pwllheli. Please contact the selling agent or developer directly to obtain any information which may be available under the terms of The Energy Performance of Buildings (Certificates and Inspections) (England and Wales) Regulations 2007 or the Home Report if in relation to a residential property in Scotland.
Map data ©OpenStreetMap contributors.






