Land for sale
Old Gloucester Road, Ross-on-Wye
- PROPERTY TYPE
Land
- SIZE
Ask agent
Key features
- Close to popular market towns
- Plot of land with detailed planning permission
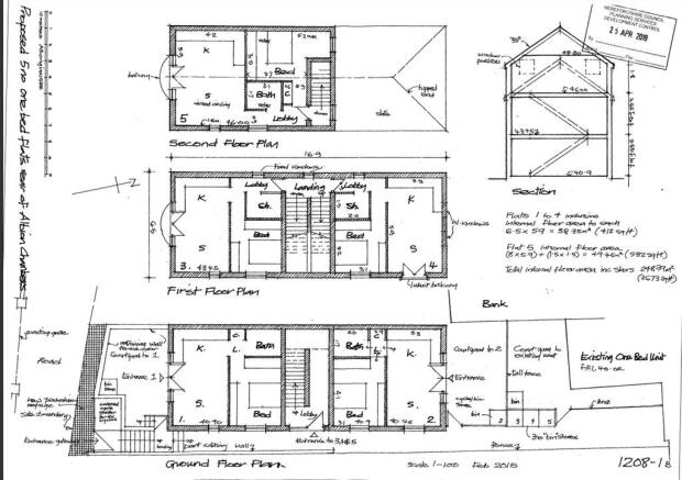
- Planning ref P191464/F at Herefordshire Council
- Close to many reputable riverside pubs and restaurants
- Within catchment area of 'Outstanding' graded primary school
Description
Gloucester Road Ross-on-Wye Herefordshire
£145,000
Planning Ref: P191464/F
Development Land to Build 5 One Bed Apartments on 3 Floors
With Planning Permission in a sought after market town.
Full description
Tenure: Freehold
An exciting development/investment opportunity in a well sought after area of Herefordshire. This prime development land is set in the heart of the market town Ross-on-Wye. The planning permission is for 5 attractive, self-contained, one bedroomed apartment spanning over three floors. The attractive design incorporates two with balconies with two courtyards for the two ground floor units.
Flat walk into the centre of Ross-on-Wye and easy access to A40 & M50.
The proposed building is constructed in red face-brickwork with feature blue brick sill and heads to azure/blue, colour coated aluminium double-glazed windows and doors under a slate tiled roof.
Bin store and cycle cover have also been designed.
For full details of the project, please go to the Herefordshire planning website.
Please note the vendor is renewing the planning application for a sale to proceed.
Locations
Ross-on-Wye offers an assortment of shops, supermarkets, independently-owned boutiques, a range of restaurants, welcoming pubs and various leisure facilities. There are four schools dotted around the town - three primaries and one secondary - all of which carry 'Good' Ofsted ratings.Ross also houses two GP surgeries and both of these, plus the local community hospital, are all a short walk. There are also numerous spectacular woodland, riverside and country hikes nearby, including the Town and Country Trail, Chase Woods and the John Kyrle circular walk, taking in fields and the River Wye. The Rope Walk - a lovely level route taking visitors on a stroll alongside the River Wye is also just a few minutes' walk away.
Ross is also within easy access of major road networks. The A40 is around a mile away and the east-bound road provides a direct route to Gloucester, Cheltenham and the Cotswolds. Meanwhile, motorists heading in the opposite direction can journey towards the M4 at Newport, giving access to Cardiff and London. In addition, the M50 motorway is around two miles away and this gives good access to the M5 - leading to Birmingham to the north and Bristol to the south.
Directions
As you travel along Old Gloucester Road, you will see the property shop on your right. The plot is to the rear.
Distances
Monmouth 12 miles - Ross-on-Wye 1 mile - Hereford 16 miles - Gloucester 19 miles -Cheltenham 22 miles - Bristol 57 miles -
(All distances are approximate)
Old Gloucester Road, Ross-on-Wye
NEAREST STATIONS
Distances are straight line measurements from the centre of the postcode- Ledbury Station11.3 miles



Notes
Disclaimer - Property reference 101453002123. The information displayed about this property comprises a property advertisement. Rightmove.co.uk makes no warranty as to the accuracy or completeness of the advertisement or any linked or associated information, and Rightmove has no control over the content. This property advertisement does not constitute property particulars. The information is provided and maintained by Hamilton Stiller, Ross-On-Wye. Please contact the selling agent or developer directly to obtain any information which may be available under the terms of The Energy Performance of Buildings (Certificates and Inspections) (England and Wales) Regulations 2007 or the Home Report if in relation to a residential property in Scotland.
Map data ©OpenStreetMap contributors.




