Residential development for sale
Holton Road, Barry
- PROPERTY TYPE
Residential Development
- SIZE
Ask agent
Key features
- VACANT LAND
- STPP POSSIBLE BUILD OF APARTMENTS
- STPP POSSIBLE BUILD OF RETAIL UNITS
- GET IN TOUCH TO KNOW MORE
Description
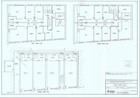
Previous planning was submitted for 6 apartments above and four retail units below.
Possible potential here for a large build and to introduce some new apartments into the area subject to the correct planning and agreements.
Get in touch to know more.
Brochures
Holton Road, BarryBrochureHolton Road, Barry
NEAREST STATIONS
Distances are straight line measurements from the centre of the postcode- Barry Docks Station0.4 miles
- Barry Station0.9 miles
- Barry Island Station0.9 miles
Notes
Disclaimer - Property reference 32130964. The information displayed about this property comprises a property advertisement. Rightmove.co.uk makes no warranty as to the accuracy or completeness of the advertisement or any linked or associated information, and Rightmove has no control over the content. This property advertisement does not constitute property particulars. The information is provided and maintained by Key Executive Sales, Cardiff. Please contact the selling agent or developer directly to obtain any information which may be available under the terms of The Energy Performance of Buildings (Certificates and Inspections) (England and Wales) Regulations 2007 or the Home Report if in relation to a residential property in Scotland.
Map data ©OpenStreetMap contributors.






