Site at 19c Rope Walk, Prestonpans EH32 9BN
- PROPERTY TYPE
Land
- BEDROOMS
3
- BATHROOMS
2
- SIZE
Ask agent
Key features
- Excellent residential development opportunity
- Planning for 6 x semi detached houses
- Niche development opportunity
- Central location within Prestonpans
- Full Technical Pack available
Description
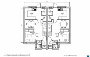
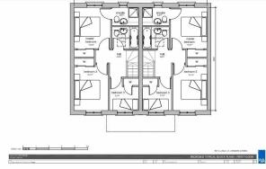
PLANNING PERMISSION FOR 6 X 3 BED SEMI DETACHED HOUSES
PLANNING REFERENCE 20/00781/P
Excellent opportunity for niche developer to undertake this attractive residential project in the popular East Lothian town of Prestonpans.
Features and Description
*
Tenure: Freehold
*
Full Planning Permission in Place (East Lothian Council 20/00781/P)
*
Planning Permission for 6 x semi detached houses
*
Popular Residential Location
*
Excellent public transport links
*
Excellent opportunity for niche developer to undertake this attractive residential project in the popular East Lothian town of Prestonpans.
*
Full technical pack available from Ballantynes or
Rare residential development opportunity with Planning Permission for popular family style housing.
GENERAL
The development site at Rope Walk is bounded by a fence line to the south which looks out over the neighbouring running track of Pennypit Community Development and mainstream residential housing to the north. A full technical pack is available upon request.
Prestonpans is located on the southern shore of the Firth of Forth, nine miles east of Edinburgh's city centre.It is located approximately 10 miles from Edinburgh therefore offering the commuter easy access to the City Centre and surrounding towns and villages. There is excellent public transport in the town, with a railway station plus excellent bus service links. The train to the city centre takes approx. 15 minutes. The nearby City Bypass offers excellent road connections into Edinburgh and to Edinburgh International Airport. Schooling is also well provided for from nursery through to senior school.
There is a good provision of local facilities including Scotmid & Lidl supermarkets. Nearby Musselburgh provides a good choice of sporting and recreational facilities including two sporting facilities, one of which has a swimming pool, two golf courses and the famous racecourse.
SERVICES
It is believed mains electricity and water runs close by to the site. Any purchaser should satisfy themselves regarding the full range of services available. The purchasers will be responsible for installing their own drainage system and securing connections to the power and water supplies.
Full technical pack available from Ballantynes or
Tenure: Freehold
Brochures
BrochureSite at 19c Rope Walk, Prestonpans EH32 9BN
NEAREST STATIONS
Distances are straight line measurements from the centre of the postcode- Prestonpans Station0.6 miles
- Wallyford Station1.6 miles
- Musselburgh Station3.7 miles
Notes
Disclaimer - Property reference RS1371. The information displayed about this property comprises a property advertisement. Rightmove.co.uk makes no warranty as to the accuracy or completeness of the advertisement or any linked or associated information, and Rightmove has no control over the content. This property advertisement does not constitute property particulars. The information is provided and maintained by Ballantynes, Edinburgh. Please contact the selling agent or developer directly to obtain any information which may be available under the terms of The Energy Performance of Buildings (Certificates and Inspections) (England and Wales) Regulations 2007 or the Home Report if in relation to a residential property in Scotland.
Map data ©OpenStreetMap contributors.






