
Llanfair Dyffryn Clwyd, Rhuthun
- PROPERTY TYPE
Plot
- SIZE
Ask agent
Key features
- Large Freehold Building Plot About 0.17 Acre
- Detailed Planning Consent For 1 Large 3 Bedroom Detached Bungalow
- Standing In A Lovely Setting
- Near To Popular Village
- Around 2 Miles From Ruthin
- Garden Area To Front
- Designated Parking Area
Description
Forming part of the large gardens to the front of Clover Bank with a new shared double width entrance in the sale presents a rare opportunity to develop a very spacious bungalow. The approved plans are for a very spacious home affording canopy entrance, central hall, large L'shaped kitchen/dining and family room, lounge, utility, bedroom 1 with en-suite, 2 bedrooms and bathroom.
Garden area to front with designated parking area.
Location - Llanfair Dyffryn Clwyd is a small rural village standing on the A525(T) Wrexham Road some 2 miles from Ruthin. There is a Primary School, Inn and Church to its centre, whilst the nearby market town provides an ideal range of facilities to include secondary schools and leisure facilities.
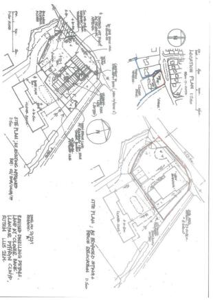
Planning Permission - Detailed planning permission has been approved by Denbighshire County Council under Application No. 20/2022/0996 NMA and application No. 20/2021/0637 for a detached 3 bedroom bungalow on land at Clover Bank, Llanfair D.C.
Dated 30th. March 2023.
A copy of the approval and plans are available for inspection on the Council Planning Portal or the agents Ruthin office.
Proposed Development Plans - The approved plans permit the development of a large detached single storey bungalow as per the sketch plans included. The proposed accommodation will provide:
Deep canopy entrance.
Large central reception hall with cloaks cupboard.
Large L'shaped kitchen/Dining room 6.2 metres x 4.5 metres plus adjoining Family room 3.6 metres x 3.3 metres.
Lounge 6'1 metres x 3.8 metres.
Study 3.5 m x 2.4m.
Bedroom 1 5m max x 3.7m average.
En-Suite shower room
Bedroom 2. 4m x 3m
Bedroom 3. 3.15m x 2.66m
Bathroom 3m x 2.4 m
Utility Room.
Services - We understand mains water, electricity and drainage are available for connection within the area, but prospective buyers should make their own enquiries to confirm with the Utility companies.
Directions - From the Agent's Ruthin Office proceed down Well Street and on reaching the junction with Station Road bear right. Follow the road out of town for some miles and on entering the village of Llanfair DC continue to the White Horse Inn and turn immediately right signposted Pwllglas. Continue past the primary school and the plot will be found on the left.
Tenure - Understood to be Freehold.
Viewing - By appointment through the Agent's Ruthin office .
FLOOR PLANS - included for identification purposes only, not to scale.
ESJ/HME
Anti Money Laundering Regulations - Intending purchasers will be asked to produce identification documentation before we can confirm the sale in writing. There is an administration charge of £30.00 per person payable by buyers and sellers, as we must electronically verify the identity of all in order to satisfy Government requirements regarding customer due diligence. We would ask for your co-operation in order that there will be no delay in agreeing the sale.
Extra Services - Mortgage referrals, conveyancing referral and surveying referrals will be offered by Cavendish Estate Agents. If a buyer or seller should proceed with any of these services then a commission fee will be paid to Cavendish Estate Agents Ltd upon completion.
Material Information Report - The Material Information Report for this property can be viewed on the Rightmove listing. Alternatively, a copy can be requested from our office which will be sent via email.
Brochures
Llanfair Dyffryn Clwyd, RhuthunLlanfair Dyffryn Clwyd, Rhuthun
NEAREST STATIONS
Distances are straight line measurements from the centre of the postcode- Penyffordd Station10.9 miles



Notes
Disclaimer - Property reference 32259607. The information displayed about this property comprises a property advertisement. Rightmove.co.uk makes no warranty as to the accuracy or completeness of the advertisement or any linked or associated information, and Rightmove has no control over the content. This property advertisement does not constitute property particulars. The information is provided and maintained by Cavendish Estate Agents, Ruthin. Please contact the selling agent or developer directly to obtain any information which may be available under the terms of The Energy Performance of Buildings (Certificates and Inspections) (England and Wales) Regulations 2007 or the Home Report if in relation to a residential property in Scotland.
Map data ©OpenStreetMap contributors.






