Land at Ivy House Farm, Thrintoft, Northallerton
- PROPERTY TYPE
Land
- SIZE
Ask agent
Key features
- Outline Planning Permission for 2 Residential Dwellings
- Panoramic Open Field Views
- Village Development
- Single Road Access Point
- Good Local Amenities
Description
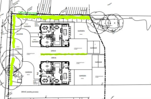
Introduction - A prime residential development opportunity benefitting from outline planning permission for the construction of two residential dwellings.
Situation - Located on the southern side of Thrintoft Moor Lane in the centre of the village of Thrintoft and served by a single access point onto the highway.
Description - Residential development site with outline planning permission with some matters reserved for the construction of two residential dwellings being a 3 & 4 bedroom house. Further reserved matters application has been made following the initial outline consent altering the scheme. Please note that the outline and reserved matters application is for four dwellings with only plots 1 & 2 being for sale. There is potential for agreement of extending the site on the southern boundary increasing the garden space.
General Remarks & Stipulations - Plans & Area
The plans are provided for identification only. Potential purchasers must satisfy themselves with the property.
Wayleaves, Easements & Rights of Way
The land is sold subject to and with the benefit of all rights of way, whether public, or private, light, water, drainage, sewage, support and easements and other restrictive covenants and existing and proposed wayleaves for masts, pylons, cables, water, gas pipes whether mentioned in these particulars or not.
Planning
Outline Planning for four dwellings: 18/02416/OUT
Reserved Matters Application: 22/00259/REM
The vendor reserves the right to require the purchaser to submit full planning including plots 3 & 4 with vendor supplying suitable drawings and a fair proportion of the costs.
Local Authority
North Yorkshire Council, Civic Centre, Stone Cross, Northallerton, DL6 2UU
Boundaries
The Vendor will sell all boundaries for which they have an interest in.
Timber, Minerals & Sporting
The Timber, Minerals and Sporting Rights are to be included with the freehold as far as they are owned.
Tenure
The Land is freehold and will be sold with vacant possession.
Method of Offering
The Property is offered for sale initially by private treaty. We urge all interested parties to register their interest with us so we can keep you updated as to how the sale will be concluded. All expressions of interest should initially be direct to Simon Manthorpe MRICS FAAV.
Viewings
People wishing to view may do so at any reasonable time whilst carrying a copy of these particulars.
Brochures
Land at Ivy House Farm, Thrintoft, NorthallertonBrochureLand at Ivy House Farm, Thrintoft, Northallerton
NEAREST STATIONS
Distances are straight line measurements from the centre of the postcode- Northallerton Station2.6 miles
- Leeming Bar Station3.0 miles
- Bedale Station4.6 miles
Notes
Disclaimer - Property reference 32288036. The information displayed about this property comprises a property advertisement. Rightmove.co.uk makes no warranty as to the accuracy or completeness of the advertisement or any linked or associated information, and Rightmove has no control over the content. This property advertisement does not constitute property particulars. The information is provided and maintained by Northallerton Estate Agency, Northallerton. Please contact the selling agent or developer directly to obtain any information which may be available under the terms of The Energy Performance of Buildings (Certificates and Inspections) (England and Wales) Regulations 2007 or the Home Report if in relation to a residential property in Scotland.
Map data ©OpenStreetMap contributors.





