Marlborough Road, London E18 1
- PROPERTY TYPE
Land
- SIZE
2,614 sq ft
243 sq m
Key features
- Residential Development Site
- Planning Permission Granted for 5 Apartments
- Unconditional Offers Invited
- Located 0.2 mile from South Woodford Station
- Viewings by Appointment Only
- Contact Spicerhaart Land Department
Description
The property is conveniently under 0.2 mile from South Woodford Underground Station (Central Line) with direct lines to Liverpool Street in circa 20 minutes. The property is within close proximity to popular schools such as Churchfields and Woodford County High, with easy access to the A12, M11 and the A406.
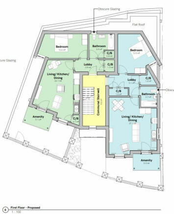
The property benefits from full planning permission for Demolish existing building. Erection of three storey building to create 5 new self contained one-bedroom flats with associated amenity space, cycle and refuse storage. Planning reference; 0070/23 under the London Borough of Redbridge.
The property has been converted into three flats at present under one title; EGL121197. When the property was fully tenanted, the owners were achieving a rental income in the region of £36,000 per annum (subject to review). The property can be offered with vacant possession.
The freehold interest in the site is being offered for sale on an unconditional basis. The owners are inviting offers and all interested parties should contact Luke from the Spicerhaart land department for further details. Viewings by appointment only.
N.B. These particulars have been prepared in good faith and are believed to be correct. The plans and areas have been prepared from the Ordnance Survey Map and are similarly believed to be correct. Both are published for identification purposes only and prospective purchasers should satisfy themselves as to their accuracy. Prospective purchasers are advised that neither the seller, their agents, nor solicitors bind themselves to accept the highest of any offer submitted.
Disclaimer
haart Estate Agents also offer a professional, ARLA accredited Lettings and Management Service. If you are considering renting your property in order to purchase, are looking at buy to let or would like a free review of your current portfolio then please call the Lettings Branch Manager on the number shown above.
haart Estate Agents is the seller's agent for this property. Your conveyancer is legally responsible for ensuring any purchase agreement fully protects your position. We make detailed enquiries of the seller to ensure the information provided is as accurate as possible. Please inform us if you become aware of any information being inaccurate.
Brochures
BrochureMarlborough Road, London E18 1
NEAREST STATIONS
Distances are straight line measurements from the centre of the postcode- South Woodford Station0.1 miles
- Snaresbrook Station0.7 miles
- Wanstead Station1.0 miles
Notes
Disclaimer - Property reference 9927_HRT992700077. The information displayed about this property comprises a property advertisement. Rightmove.co.uk makes no warranty as to the accuracy or completeness of the advertisement or any linked or associated information, and Rightmove has no control over the content. This property advertisement does not constitute property particulars. The information is provided and maintained by Spicerhaart Land, covering North England. Please contact the selling agent or developer directly to obtain any information which may be available under the terms of The Energy Performance of Buildings (Certificates and Inspections) (England and Wales) Regulations 2007 or the Home Report if in relation to a residential property in Scotland.
Map data ©OpenStreetMap contributors.




