Coín, Málaga, Andalusia, Spain
- PROPERTY TYPE
Detached Villa
- BEDROOMS
3
- BATHROOMS
2
- SIZE
2,314 sq ft
215 sq m
Key features
- REF: D4322728
- ONLINE VIEWINGS AVAILABLE
- Private Pool
- Client Bespoke Design
- Selection of Location
- Popular Urtbanisation
- Great Views
- Customisable Furnishings
Description
The design is inspired by the transparent waters of a crystalline river and helps you appreciate the beauty and the connection with the natural environment in every corner of the home. Its cubic and modular shape provides large open spaces that help you lead a comfortable and relaxed life.
The Basement level provides both vehicle and pedestrian access to the house, parking area, machine room and the lift (elevator).
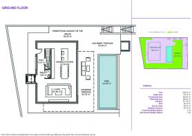
The Ground Floor has the living room, kitchen-diner, and guest WC, plus a covered terrace and swimming pool outside.
The Top Floor is where the bedrooms are, all with fitted wardrobes. The main bedroom has an ensuite bathroom, dressing room and covered terrace. The other two bedrooms have fitted wardrobes and a covered terrace with access to a shared bathroom.
The garden will be landscaped with decorative plants, further adding to the appeal of the property.
The design of the villa will be adjusted to the client's taste. The location of the property can be chosen from the amongst the currently available plots and the house fixtures can be chosen from one of three different standard packages, though this can also be personalised according to the client's preference.
____
Town Description: Coín is a very cosmopolitan town in the interior of the Costa del Sol that boasts a modern shopping centre on the main access road and combines a multiscreen cinema at very reasonable prices, spa, gym and a flea market every Sunday morning, next to the ecological farmer's market. In the town centre, like most local Spanish towns and villages, there are a variety of great places to eat at prices that won't break the bank. The central plaza has underground parking, which comes in handy if you need to visit the town hall. In the Plaza del Pescado there is a wonderful homemade ice-cream shop coupled with a Gin-Tonic bar, which is just one of the quality bars and restaurants in the square from tapas as little as 1.50. It's a perfect way to enjoy a relaxing summer afternoon. Coín also has numerous public schools, a very accessible health centre, various local holidays (like the fun Orange Festival, just ask us!) and it is just a 10 minute drive from the Guadalhorce Hospital, under 30 minutes from the airport and 20 minutes from Marbella and the beaches.
____
Company Description: We would like to say a friendly hello and welcome from Ideal Country Property. The established Costa del Sol inland property specialists. Since 2007 we have been passionate about offering a friendly and professional service to our many national and international clients. Not only do we sell and rent properties in this beautiful part of the world, we also live here and have done so for over 20 years! Our founding members all have 20 years of experience in the local real estate business and thrive on sharing that knowledge to help others find their dream homes in the sun, just as we did all those years ago. Whether you are looking for a country home, a villa with a pool, an apartment on the golf course or a traditional townhouse, we are here to offer you help and support throughout the entire process. We look forward to you becoming our friends and neighbours.
Coín, Málaga, Andalusia, Spain
NEAREST AIRPORTS
Distances are straight line measurements- Málaga(International)14.2 miles
- Gibraltar (North Front)(International)48.5 miles
- Jerez(International)72.8 miles
- Sevilla (San Pablo)(International)81.7 miles
Advice on buying Spanish property
Learn everything you need to know to successfully find and buy a property in Spain.
Notes
This is a property advertisement provided and maintained by Ideal Country Property, Malaga (reference D4322728) and does not constitute property particulars. Whilst we require advertisers to act with best practice and provide accurate information, we can only publish advertisements in good faith and have not verified any claims or statements or inspected any of the properties, locations or opportunities promoted. Rightmove does not own or control and is not responsible for the properties, opportunities, website content, products or services provided or promoted by third parties and makes no warranties or representations as to the accuracy, completeness, legality, performance or suitability of any of the foregoing. We therefore accept no liability arising from any reliance made by any reader or person to whom this information is made available to. You must perform your own research and seek independent professional advice before making any decision to purchase or invest in overseas property.





