
Conisholme LN11 7LS

- PROPERTY TYPE
House
- SIZE
934 sq ft
87 sq m
- TENUREDescribes how you own a property. There are different types of tenure - freehold, leasehold, and commonhold.Read more about tenure in our glossary page.
Freehold
Key features
- Detached Methodist Church
- Planning permission for conversion to a dwelling
- Rural setting facing farmland
- Parking area, garden forecourt
- Proposed 2/3 bedroom accommodation
- Large living-dining-kitchen
- Bi-fold French doors to raised deck with views
- For sale with NO CHAIN
Description
Directions Travelling north towards Conisholme on the A1031 road from the larger village of North Somercotes, upon entering Conisholme at the sharp right bend, look for the left turn into Church Lane. Take this turning and the church is then immediately on the left side.
The Property The original church building dates back to 1856, as depicted by a plaque on the front elevation and an extension to the side has a stone date plaque indicating that this was constructed in 1990. Both parts of the building have brick-faced principal walls with piers and an ornate, brick pillared entrance frames the main door into the old chapel. There is then a brick arch over the doorway into the side entrance lobby. The building has pitched and hipped timber roof structures covered in natural slate and the windows, have been replaced with uPVC-framed double-glazed units including eight arched windows divided between the front and rear elevations. The larger windows have mainly tilt and turn opening frames. Heating is provided by a number of electric panel heaters, together with an electric wall-mounted fan heater over the original main entrance. The floor to ceiling height in the reception hall is 3.1m and the maximum floor to ceiling height in the main church is 4.2m. The building is of attractive design and has some lovely views to the southwest over fields toward a farmhouse and farm buildings in the distance. NB - the lawned area at the side of the church does not belong to the property.
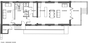
Current Accommodation (Approximate existing room dimensions are shown on the floor plans which are indicative of the room layout and not to specific scale)
Mahogany-effect uPVC door adjacent to the current parking area, finished in white internally and opening into the:
Entrance Lobby With an oak floor, coat hooks to wall rail, wall grip and doors off to the church hall and:
Cloakroom/WC With a white suite comprising a low-level WC and bracket wash hand basin with ceramic-tiled splashback. Tilt and turn window on the side elevation with tiled sill.
Church Hall A spacious room with arched windows to the front and rear elevations, pine dado rail to all four sides, notice board, four pendant light points to the ceiling and trap access to the extension roof void. Heating by two electric wall-mounted panel heaters and connecting doors to the church and:
Kitchen Fitted with a range of units comprising base cupboards and drawers, roll-edge work surfaces and serving bar with double door hatch to the church hall. Matching wall cupboards and tall cupboard to the corner. Stainless steel single drainer sink unit, ceramic-tiled splashbacks to the work surfaces and strip light. Double-glazed window with tilt and turn opening lights on the side elevation.
Main Church A spacious room on split levels with sloping floor, lined with pitch pine pews on either side of a centre aisle. Benches on the upper level, pine dado panelling on all four sides, electric wall-mounted panel heaters and wall fan heater over the mahogany-effect uPVC main door from outside. The pulpit is a feature of the property with ornate carving and a pitch pine balustrade with cast iron bannisters, together with ornate newel posts. The pulpit is curved on each side and has carpeted steps up to the lectern and a bench seat. There are four pendant ceiling lights, two arched windows to both the front and rear elevations and a base cupboard housing the electricity meter and fuse boxes. The high ceiling is coved and has a further trap access into the original main roof void.
Outside The chapel stands on the fringe of the village and has a tarmac-paved parking area at the front and for a short distance around the side. The lawned verge area in the adjoining photograph where the tractor is parked, does not belong to the property.
Immediately in front of the older part of the building there is a crazy-paved forecourt with a lean-to brick and slate store to one side and an outside light by the main entrance. This forecourt is separated from a parking area by a shaped brick wall with pillars and a matching pillar to the corner of the plot.
Land Registration Following initial marketing of this property, the land registration of the chapel is now complete and an extract from the Title Plan is shown adjacent indicating the legal boundaries.
Clearly this shows less land as belonging to the property than is shown on the architect's location plan and there is insufficient space within the legal boundaries of the plot to create the parking spaces and large side deck as shown in the drawings and elevations. The buyer will therefore need to reduce the size of the deck if still required and make alternative parking arrangements in front of the building, or further alter the proposal for the dwelling externally so that this falls within the legal boundaries.
Planning Full planning permission was granted on 24th March, 2022 for change of use, conversion of and alterations to the former chapel to provide a dwelling. Please note that the application is presently re-submitted to include the skylight windows on the roof slopes for the first-floor rooms.
Details of the planning application, drawings, etc. can be viewed by visiting the planning portal of the East Lindsey District Council website and searching for planning application number N/036/01827/22.
There are conditions relating to the planning permission. In summary these are regarding the timing of the development, works to be in accordance with the submitted plans ending PL-01 and PL-02A and there are requirements in respect of alterations to the main door on the front elevation, brickwork and relocation of an existing date stone - these require approval in writing by the local planning authority. The conditions also require approval of materials to be used in construction of the building and hard surface areas, details of boundary treatments and planting and the works are to be carried out in accordance with the submitted flood risk assessment.
Again, a full description of the conditions can be found by visiting the ELDC website and locating the planning decision. Alternatively, please contact the selling agent and a PDF can be sent by email on request.
The Proposed Dwelling
Accommodation The current floorplan on the final page shows approximate room sizes as the plan is not to scale and purely indicative of the layout. Please refer to the extracts from the submitted drawings by the architect which indicate the proposed layout of the accommodation and from which approximate scale measurements are shown in the description below.
Also note the indication on the elevation drawings that the internal ground floor level will be raised enabling the windows to provide enhanced views where there is an open country outlook.
Ground Floor
Main Entrance At the front of the property with steps to one side and a long ramp on the opposite side up to the main front door which opens into the:
Entrance Hall With return staircase leading to the first floor and door to a built-in cloaks/storage cupboard. Doors lead off to the living kitchen on the right and on the left side into the:
Living/Sitting Room or possible Bedroom 3 5m x 2.9m - with multi-pane window to the front and rear elevations.
Living/Dining Kitchen 7.5m x 5m - a superb room with four windows, two located to the front and two to the rear elevations. Bi-folding French doors on the side elevation opening onto a potential raised decking area with steps down to the garden (see comments in Land Registration above).
The kitchen has ample space to fit a range of units and appliances with views out, particularly to the front of the property, across the adjoining countryside.
Utility Room With space to fit a range of units having plumbing, etc. for washing machine and associated appliances. Rear window and connecting door to the:
Cloakroom/WC With space to fit a low-level WC and wash hand basin.
First Floor Landing With doors off to the bedrooms and bathroom.
Bedroom 1
5m x 2.9m + recess A double bedroom with part-sloping ceiling and space to construct bedroom furniture if required. Natural light from skylight windows to the rear and hip roof slopes.
Bedroom 2
5m x 3m max / 2m min 5m x 3m 2m An L-shaped double bedroom, also having space for built-in furniture as required. Skylight window to the rear roof slope.
Bathroom With space to fit a shower cubicle or bath, together with a suite of low-level WC and pedestal wash hand basin. Skylight window to the front roof slope.
Outside Please note the information in "Land Registration" above and the extract from the title plan
Viewing Strictly by prior appointment through the selling agent.
Location Conisholme is a small rural village positioned by the A1031 coast road from Grimsby to Mablethorpe. North Somercotes is 2 miles to the south and a larger village providing local facilities including public houses, primary and secondary schools, shops, recreational facilities, etc.
The market town of Louth is approximately 10 miles inland and has an attractive range of shops, three markets each week and good sporting facilities. The coastal area provides miles of nature reserves with beaches to the south. Lincoln is 39 miles away, Grimsby 16 miles and the Humberside airport, 27 miles.
General Information The particulars of this property are intended to give a fair and substantially correct overall description for the guidance of intending purchasers. No responsibility is to be assumed for individual items. No appliances have been tested.
Fixtures, fittings, carpets and curtains are excluded unless otherwise stated. Plans/Maps are not to specific scale, are based on information supplied and subject to verification by a solicitor at sale stage. We are advised that the property is connected to mains electricity and water whilst drainage is to a private system, but no utility searches have been carried out to confirm at this stage. Extracts have been included from the drawings submitted with the planning application, by the architect. The property will be rated for Council Tax banding when the conversion works have been completed.
Brochures
Online PDF Brochu...- COUNCIL TAXA payment made to your local authority in order to pay for local services like schools, libraries, and refuse collection. The amount you pay depends on the value of the property.Read more about council Tax in our glossary page.
- Ask agent
- PARKINGDetails of how and where vehicles can be parked, and any associated costs.Read more about parking in our glossary page.
- Off street
- GARDENA property has access to an outdoor space, which could be private or shared.
- Yes
- ACCESSIBILITYHow a property has been adapted to meet the needs of vulnerable or disabled individuals.Read more about accessibility in our glossary page.
- Ask agent
Energy performance certificate - ask agent
Conisholme LN11 7LS
Add an important place to see how long it'd take to get there from our property listings.
__mins driving to your place
Get an instant, personalised result:
- Show sellers you’re serious
- Secure viewings faster with agents
- No impact on your credit score
Your mortgage
Notes
Staying secure when looking for property
Ensure you're up to date with our latest advice on how to avoid fraud or scams when looking for property online.
Visit our security centre to find out moreDisclaimer - Property reference 101134006661. The information displayed about this property comprises a property advertisement. Rightmove.co.uk makes no warranty as to the accuracy or completeness of the advertisement or any linked or associated information, and Rightmove has no control over the content. This property advertisement does not constitute property particulars. The information is provided and maintained by Masons Sales, Louth. Please contact the selling agent or developer directly to obtain any information which may be available under the terms of The Energy Performance of Buildings (Certificates and Inspections) (England and Wales) Regulations 2007 or the Home Report if in relation to a residential property in Scotland.
*This is the average speed from the provider with the fastest broadband package available at this postcode. The average speed displayed is based on the download speeds of at least 50% of customers at peak time (8pm to 10pm). Fibre/cable services at the postcode are subject to availability and may differ between properties within a postcode. Speeds can be affected by a range of technical and environmental factors. The speed at the property may be lower than that listed above. You can check the estimated speed and confirm availability to a property prior to purchasing on the broadband provider's website. Providers may increase charges. The information is provided and maintained by Decision Technologies Limited. **This is indicative only and based on a 2-person household with multiple devices and simultaneous usage. Broadband performance is affected by multiple factors including number of occupants and devices, simultaneous usage, router range etc. For more information speak to your broadband provider.
Map data ©OpenStreetMap contributors.









