The Lamb, Orlingbury Road, Little Harrowden, Northamptonshire, NN9 5BH
- SIZE
Ask agent
- SECTOR
Pub for sale
Key features
- Affluent village setting
- Public bar with games room
- Lounge bar, restaurant & function room
- Potential alternative use value (STP)
- New Lease Available
- Trade garden and car park. Energy Rating C
- Christie & Co Ref: 5854359
Description
The pub is a prominent corner two storey property being part stone and part rendered with a slate and tiled roof.
The Lamb is an ideal offering for a suitable buyer who wishes to add value to a stable business model. This prominent corner position in a well populated village could also suit alternative redevelopment subject to planning and building consent. Due to its attractive location, position and overall opportunity available, early viewing is highly recommended.
The pub is located in the centre of the attractive and affluent village of Little Harrowden midway between Kettering and Wellingborough, some 15 miles off the M1 at Northampton.
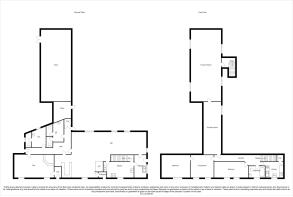
Internal DetailsThe pub is divided into three parts. There is a traditional public bar with servery to one side, games area with table skittles and seating for 15. The centrally placed lounge bar is on two levels, again with many original features, bar servery, seating (12) and garden access. The restaurant is up from here, with tables and chairs for 28 diners.
Trade kitchens are off the restaurant and there is a level cellar at the rear.
On the first floor, with an outside access staircase is the function room, which can be use for local events and societies.
Located on the first floor to the rear of the pub is a large function room with its own separate access from the trade garden.
Fixtures & FittingsThe trade fixtures and fittings are included in the purchase price.
External DetailsTo the rear of the building, is the enclosed trade garden with access to the lounge bar and function room. Part patio, part laid to lawn with covered area. Fronting the village street, there is car parking to the side and rear for around 12 vehicles.
Owner's AccommodationSpacious owner's accommodation arranged over first floor with two bedrooms, kitchen, bathroom, and living room.
The OpportunityThe business is available on a leasehold basis of an annual starting rent of £24,500 per annum with rent reviews.
The business was previously a popular village pub, drawing trade from the adjoining villages of Orlingbury and Gt Harrowden, with a wide-ranging pub food menu. The pub is now trading on a partial basis and would suit both a first time buyer and an experienced operator in the sector.
Furthermore, it is felt that the pub would lend itself to alternative use subject to planning permission.
The current rateable value according to the VOA as at 2017 is £7,200. The local authority is Wellingborough Borough Council. From April 2023 the new rateable value will be £4,400
RegulatoryThe property has a Premises Licence granted by the relevant local authority. It is a requirement of the Licensing Act 2003 that properties serving alcohol have a designated premises supervisor who must be the holder of a Personal Licence. Prospective purchasers are advised to take appropriate specialist advice.
VAT at the prevailing rate may be applicable on the sale of this property and where there is owner's accommodation is normally based on 90% of the purchase price. It is recommended that specialist advice is taken in this respect.
Brochures
The Lamb, Orlingbury Road, Little Harrowden, Northamptonshire, NN9 5BH
NEAREST STATIONS
Distances are straight line measurements from the centre of the postcode- Wellingborough Station3.0 miles
- Kettering Station4.1 miles
Notes
Disclaimer - Property reference 5854359-lh. The information displayed about this property comprises a property advertisement. Rightmove.co.uk makes no warranty as to the accuracy or completeness of the advertisement or any linked or associated information, and Rightmove has no control over the content. This property advertisement does not constitute property particulars. The information is provided and maintained by Christie & Co, Pubs & Restaurants. Please contact the selling agent or developer directly to obtain any information which may be available under the terms of The Energy Performance of Buildings (Certificates and Inspections) (England and Wales) Regulations 2007 or the Home Report if in relation to a residential property in Scotland.
Map data ©OpenStreetMap contributors.





