Land for sale
Sky View, Drapers Corner, Greensted, Essex CM5
- PROPERTY TYPE
Land
- BEDROOMS
4
- BATHROOMS
3
- SIZE
Ask agent
Key features
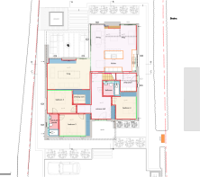
- Planning permission granted for unique modern detached double story residence
- Wonderful rural location
- 2200 sqft Dwelling
- Plans granted under planning reference: EPF/2128/22
- Overall plot size in excess of 0.3 acres
- Exciting opportunity to create a family home
- Eco Friendly Designed
- One off opportunity within this location
Description
Local Information:
Ongar High Street - 1.8 miles
Epping Station - 5.9 miles
M25 junction 28 - 10.9 miles
M11 junction - 5.3 miles
Chipping Ongar Primary School - 1.1 miles
Ongar Academy - 2.6 miles
Ongar Leisure Centre - 2.5 miles
Coopersale Hall School - 5.8 miles
Chipping Ongar Town:
Post Office
Tesco
Village Store
Sainsburys
Kings Head Public House
Porter House Turkish Restaurant Boatman Opticians
Gary Pelici Hairdressers
Offer Process:
All offers to be formally submitted by Monday 31st July 2023 to Christopher Davis in writing - all offers to include the below:
Purchasing position
Financial position
Time Frame
Proof of funds
Solicitor¿s details
For access to the below documentation please email Davis Homes.
Data Room:
Approved planning drawings
Arboriculture report
Structural Engineers Reports
Drainage Reports
Decision Notice
Ecology Report
Landscape Drawings
Official Copy of Title
Utilities Plan & Reports
Soil Report
Building Control
Interior Design
Entrance Hallway
Living Room
Kitchen/Lounge/Diner
Utility Room
Bedroom 2
Bedroom 3
Bedroom 4
Dressing Room
Bathroom
Jack & Jill En-Suite
First Floor Landing
Master Bedroom Suite
En-Suite Shower Room
Snug
Large Driveway
Large Rear Garden
PROPERTY MISDESCRIPTIONS ACT 1991 For clarification, Davis Homes Estate Agents wish to inform prospective purchasers, that we have not carried out a detailed survey, nor have we tested any of the appliances or heating system and cannot give any warranties as to their full working order. Purchasers are advised to obtain independent specialist reports if they have any doubts. All measurements are approximate and should not be relied upon for carpets or furnishings.
Sky View, Drapers Corner, Greensted, Essex CM5
NEAREST STATIONS
Distances are straight line measurements from the centre of the postcode- Epping Station4.4 miles
Notes
Disclaimer - Property reference 6260. The information displayed about this property comprises a property advertisement. Rightmove.co.uk makes no warranty as to the accuracy or completeness of the advertisement or any linked or associated information, and Rightmove has no control over the content. This property advertisement does not constitute property particulars. The information is provided and maintained by Davis Homes, Essex & London. Please contact the selling agent or developer directly to obtain any information which may be available under the terms of The Energy Performance of Buildings (Certificates and Inspections) (England and Wales) Regulations 2007 or the Home Report if in relation to a residential property in Scotland.
Map data ©OpenStreetMap contributors.






