
Auldearn, Nairn, IV12 5JZ
- PROPERTY TYPE
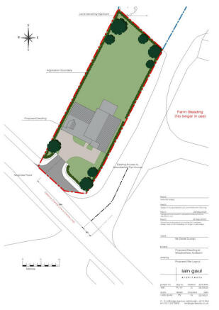
Land
- SIZE
9,583 sq ft
890 sq m
Key features
- Plot for sale
- Planning approved for a four bedroom House
- Water to site
- Electricity nearby
- Rural location
- Planning ref: 21/01632/FUL
Description
Surrounded by mature shrubs, the land is level and rectangular; mains water and electricity are nearby, and access is via a shared drive to the farmhouse. The full planning permission includes provision for a four-bedroom detached house, with a drive for parking and areas for front and rear gardens.
When completed, the property has the potential of beautiful views overlooking agricultural land and woodland in the distance. Within commuting distance of Inverness, Nairn, Forres Enterprise Park and Elgin, this site offers a fabulous opportunity for someone who works in any of these areas, or is considering moving to Highlands with their own business.
Benefiting from good broadband and mobile services, well-serviced road links to the site, and a thriving and welcoming community, Auldearn is a desirable location in a delightful and easily accessible part of the Highlands.
ABOUT AULDEARN
Auldearn is a quiet village nestled in the scenic Scottish Highlands and seamlessly blends history, natural beauty and community living. Offering the tranquillity of rural life with the convenience of nearby city and town centres, it's an ideal location for those seeking a balanced lifestyle. Landmarks such as the ruins of Auldearn Castle and the unique Boath Doocot attract visitors and history enthusiasts.
Road access to and from Auldearn is via the A96, which links the village to the nearby towns of Nairn and Forres, and the cities of Inverness and Elgin. Inverness Airport is approximately 12 miles away and there is a train station due to open soon at Dalcross near the airport.
The local economy is largely agricultural and there is also a thriving entrepreneurial presence, as well as many people who commute to Nairn, Inverness, Forres and Elgin. This creates a good community dynamic, fusing the charm of rural living with the benefits of urban life.
Despite its size, Auldearn and nearby Nairn, provide essential services to its residents. The village focal point is the 1645 Inn and a good number of independent shops and other amenities such as post offices and restaurants, doctors and dental clinice, are available in nearby Nairn or Inverness.
Auldearn Primary School caters to the youngest residents, while secondary students typically attend Nairn Academy, a short distance away.
The village's picturesque landscape and history make it an especially charming location for those considering a move to the Highlands.
Brochures
Brochure 1Auldearn, Nairn, IV12 5JZ
NEAREST STATIONS
Distances are straight line measurements from the centre of the postcode- Nairn Station2.9 miles
Notes
Disclaimer - Property reference RX278573. The information displayed about this property comprises a property advertisement. Rightmove.co.uk makes no warranty as to the accuracy or completeness of the advertisement or any linked or associated information, and Rightmove has no control over the content. This property advertisement does not constitute property particulars. The information is provided and maintained by Hamish Homes Ltd, Inverness. Please contact the selling agent or developer directly to obtain any information which may be available under the terms of The Energy Performance of Buildings (Certificates and Inspections) (England and Wales) Regulations 2007 or the Home Report if in relation to a residential property in Scotland.
Map data ©OpenStreetMap contributors.






