Chulmleigh
- PROPERTY TYPE
Plot
- SIZE
Ask agent
Key features
- A two property site
- Situated in the centre of Chulmleigh
- PP for a Detached Three Bedroom House
- PP to Convert a Two Bedroom Mews Cottage
- Parking for Both Properties
- Gardens/Amenity Land with both properties
- Main Services Nearby
- Access to Be Created at Buyers Expense
- A proportion of Section 106 charges apply
Description
Situation - Chulmleigh is a small but busy town set in the heart of rural Devon. It is the centre for an active and friendly community and offers a good range of local shops including a butcher, bakery, dairy, newsagent, florists, hairdressers etc, along with the excellent Chulmleigh Academy offering schooling from the ages of 3 to 16 years of age, health centre, dental surgery, Post Office, churches, library, two public houses and a community run Sports Centre and a short 18 hole golf course. The market town of South Molton to the north and Crediton to the south both offer a more comprehensive range of facilities and the local railway station at Eggesford, 2 miles, provides a rail link between Exeter and Barnstaple. Road link is via the A377 or the North Devon Link Road, which can easily be accessed at South Molton. Barnstaple, North Devon's regional centre, and the Cathedral and University city of Exeter both offer the wide range of shopping, amenities and facilities one would expect from the county's principal town and city. Tiverton, the M5 motorway at Junction 27 and Tiverton Parkway station, which provides a fast Intercity rail link to London Paddington, are both approximately forty-five minutes drive. There is also an international airport at Exeter.
There are excellent recreational and sporting facilities in the area with a range of Leisure Centres at South Molton, Tiverton, Crediton and Barnstaple, near-by tennis courts and clubs, local rugby, football and cricket clubs, fishing in the rivers Taw and Torridge, further near-by golf courses at Libbaton, High Bullen and Down St Mary, excellent walking and riding in all directions, racecourses at Haldon Exeter and Newton Abbot, and sailing and watersports on North Devons scenic and rugged coastline, being approximately three-quarters of an hours drive.
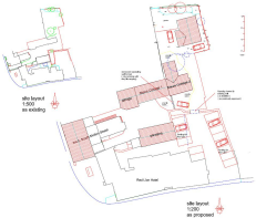
Description - An opportunity to purchase a two plot site in the centre of Chulmleigh on land behind the Red Lion and 2 South Molton Street. North Devon District Council have recently granted planning permission on Application Number 78782 to build a detached three bedroom house and to convert a former workshop into a two bedroom mews style cottage both with parking and garden/amenity land. It is proposed that a new access be created through the wall in the Red Lion car park at the buyers expense. There is also a proportionate amount (2/5th's) to pay towards the Section 106 Agreement which totals £7005.60
Planning Permission - A copy of the Planning Permission for the Development and the associated Plans are drawings are available from The Keenor Estate Agent office on request or can be viewed on the North Devon District Council Planning Portal.
Tenure - The property is being sold freehold
Services - Investigations have not been made as to the availability or otherwise of mains electricity, water or drainage, although the services are believed to be nearby.
Viewing - Strictly by appointment through the agent. Out of Hours Please Call
Money Laundering Regulations - Under the Sanctions and Anti-Money Laundering Act 2018, once a sale has been agreed, we are required to conduct I.D./AML and proof of funds checks on all purchasers before the property will be marked SSTC and a Memo of Sale issued. A fee of £25 + VAT per person applies for these checks to be carried out.
Disclaimer - Please be aware (1) Neither the Vendor/Landlord or their Agent will be held liable for any damage or injury which may occur during a visit to the property. Any interested parties viewing the property do so entirely at their own risk. (2) Our details are produced in good faith & all property information provided as accurately as possible with the vendors' approval prior to publishing, however they are a general guide and cannot be relied upon as factual statements. We encourage buyers to contact us with any queries about the property either prior to or after viewing. (3) All measurements, photos, and distances mentioned are approximate. (4) Any mention of appliances and/or services does not guarantee they are in full and efficient working order. (5) We are not legal professionals, we can usually provide a copy of the property title register and plan but we do not see property title deeds or other legal paperwork. Buyers should always seek advice from a qualified conveyancer about any legal issues and ownership responsibilities.
Brochures
CHULMLEIGHBrochureChulmleigh
NEAREST STATIONS
Distances are straight line measurements from the centre of the postcode- Eggesford Station1.8 miles
- King's Nympton Station2.2 miles
- Portsmouth Arms Station4.6 miles



Notes
Disclaimer - Property reference 32475271. The information displayed about this property comprises a property advertisement. Rightmove.co.uk makes no warranty as to the accuracy or completeness of the advertisement or any linked or associated information, and Rightmove has no control over the content. This property advertisement does not constitute property particulars. The information is provided and maintained by The Keenor Estate Agent, Chulmleigh. Please contact the selling agent or developer directly to obtain any information which may be available under the terms of The Energy Performance of Buildings (Certificates and Inspections) (England and Wales) Regulations 2007 or the Home Report if in relation to a residential property in Scotland.
Map data ©OpenStreetMap contributors.






