Espiche, Algarve, Portugal
- PROPERTY TYPE
Ruins
- SIZE
570 sq ft
53 sq m
Key features
- Ruin for total rebuilding in Espiche.
- In need of total demolishing.
- Suitable to build a 2 storey townhouse.
- Total area is 53,54 sqm.
- In a characteristic Portuguese village.
- Only 2 km from Praia da Luz and its beach.
- A short 6 km drive to the city of Lagos.
- Village with a diverse international community.
- Proximity to services.
Description
Ruin house located in Espiche with a total area of 53.5 sqm.
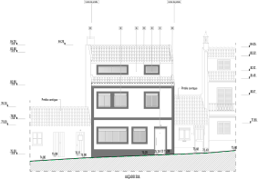
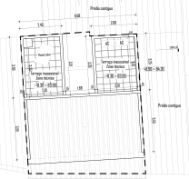
The existing structure must be demolished, as it is no longer suitable for habitation. A new two-storey house with a rooftop terrace can be built on the site, and an approved project is already in place.
There is also the possibility of acquiring the front-facing ruin (Ref. V1817_2), which has an area of 37.5 m². This space could potentially be transformed into a courtyard for the main house, a garage, or even an independent studio with approximately 75 m².
Espiche is a small and charming Portuguese village located about 2 km from Praia da Luz and around 6 km from the city of Lagos. It is home to a mix of Portuguese residents and an international community who have found in Espiche a peaceful retreat, while still enjoying close proximity to all necessary shops and services.
---
VISITOR INFORMATION:
Sunpoint Properties is managed by Susana do Carmo Duarte, a professional property consultant with experience in the Western Algarve real estate business since 1995. Sunpoint is experienced in sales of different types of properties ranging from ruins, old houses, resort properties, luxury villas.
We can also provide project management services to clients who wish to build their dream homes, helping them find the ideal site, advising with a local architect, engineer, a trustworthy quality builder, and anything else that is essential to have a property built successfully.
If you are looking for your dream home or an investment in the sunny Algarve, Susana and her team will be happy to help you.
Throughout the years, Sunpoint has established strong and long-lasting relationships with the most professional and reliable partners. They can further help make your investment project hassle-free. Such partners include but are not limited to reputable rental management companies, banks offering good mortgage conditions, legal assistance in various languages, surveyors, interior decorators, furniture kit suppliers, and last but not least a trustworthy currency exchange company with whom we have also worked for many years.
The beautiful village of Praia da Luz belongs to the municipality of Lagos, an ancient maritime town with more than 2000 years of history, situated in the south of Portugal just 30 km from Sagres and Cape St. Vincent, which is the most south-westerly point of Europe.
The Western Algarve has, without a doubt, some of the most beautiful beaches in the world and natural beauty in abundance with spectacular landscapes.
The lively city of Lagos was the centre of the world at the time of the Portuguese discoveries, around the fifteenth century and has a beautiful historical centre, with several terraces, restaurants, and shops. It is an essential place to visit.
15 km away is the Algarve International racing circuit, which hosts an annual round of the World Superbike Championship and many other racing events.
Simply deciding how you wish to spend your time here is a pleasure, from a leisurely day in town or on the beach to visiting places of interest and shopping. If it is sports and outdoor activities that you desire there is golf, swimming, surfing, kayaking, sailing, boat trips, dolphin watching, grotto tours, fishing, jet-skiing, windsurfing, jeep safaris, tennis just to mention a few.
Faro airport is only a 90-minute drive away with easy access from the A22 motorway.
The variety of property in the Western Algarve is sublime, and one will never be disappointed with the spectacular region. We have the finest selection of villas, apartments, townhouses, farmhouses, cottages and more, to suit your requirements perfectly.
Brochures
Brochure 1Espiche, Algarve, Portugal
NEAREST AIRPORTS
Distances are straight line measurements- Faro(International)43.3 miles
Advice on buying Portuguese property
Learn everything you need to know to successfully find and buy a property in Portugal.
Notes
This is a property advertisement provided and maintained by Sunpoint Properties, Praia da Luz (reference SP-V1817_1) and does not constitute property particulars. Whilst we require advertisers to act with best practice and provide accurate information, we can only publish advertisements in good faith and have not verified any claims or statements or inspected any of the properties, locations or opportunities promoted. Rightmove does not own or control and is not responsible for the properties, opportunities, website content, products or services provided or promoted by third parties and makes no warranties or representations as to the accuracy, completeness, legality, performance or suitability of any of the foregoing. We therefore accept no liability arising from any reliance made by any reader or person to whom this information is made available to. You must perform your own research and seek independent professional advice before making any decision to purchase or invest in overseas property.





