
Shirley Way, Croydon
- PROPERTY TYPE
Land
- SIZE
Ask agent
Key features
- Super development plot
- Unique site highly sought after residential location
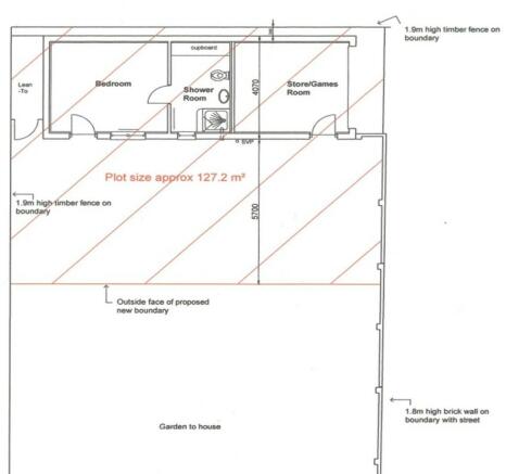
- Plot size approximate 127.2m2
- No current planning however lots of potential
Description
EPC N/A, Tax Band TBC.
Brochures
S1 - 4 Page Lands...Shirley Way, Croydon
NEAREST STATIONS
Distances are straight line measurements from the centre of the postcode- Addington Village Tram Stop1.1 miles
- West Wickham Station1.2 miles
- Gravel Hill Tram Stop1.2 miles
Notes
Disclaimer - Property reference 102893012080. The information displayed about this property comprises a property advertisement. Rightmove.co.uk makes no warranty as to the accuracy or completeness of the advertisement or any linked or associated information, and Rightmove has no control over the content. This property advertisement does not constitute property particulars. The information is provided and maintained by Benson & Partners, Croydon. Please contact the selling agent or developer directly to obtain any information which may be available under the terms of The Energy Performance of Buildings (Certificates and Inspections) (England and Wales) Regulations 2007 or the Home Report if in relation to a residential property in Scotland.
Map data ©OpenStreetMap contributors.








